Если цена в объявлении изменится, мы сразу сообщим вам об этом на электронную почту.
Нажимая «Подписаться», вы соглашаетесь с правилами.
продам 1-к, Дачная, 29 500 000 ₽
26 янв
Дата публикации объявления
Обн. 20 апр
Дата обновления объявления
12
Количество просмотров (+ просмотры за сегодня)
253 333 ₽/м²
Чистая продажа
Термин "Чистая продажа" означает, что в квартире никто не прописан или
есть куда выписаться и вывезти вещи. Это лучший вариант для покупателя.
Вероятность срыва сделки минимальна.
Застройщик - СД Регион, ООО. Проектная декларация опубликована на сайте застройщика
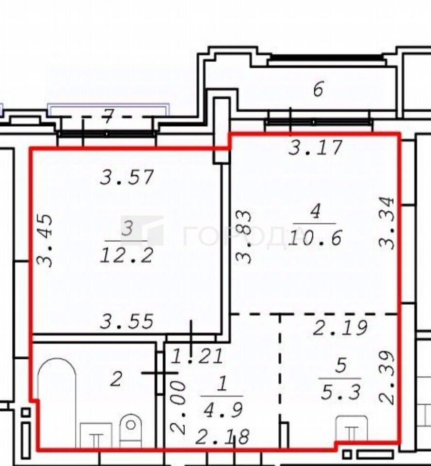
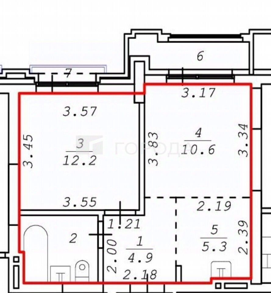
Код объекта: 2013298. Уникальное предложение на рынке недвижимости Новосибирска — просторная однокомнатная квартира в монолитной новостройке по адресу Дачная улица, 2. Квартира расположена на шестом этаже шестиэтажного дома, построенного в 2025 году. Общая площадь квартиры составляет 37,5 квадратных метров, из которых 22,8 квадратных метров приходится на жилую площадь, а 5,3 квадратных метров — на кухню. В квартире есть балкон и лоджия, а окна выходят на улицу. Санузел совмещённый. Квартира продаётся без отделки, что даёт возможность новому владельцу воплотить свои дизайнерские идеи и создать уютное пространство по своему вкусу. Можно сделать двухкомнатную студию.Дом расположен в развитом районе с хорошей инфраструктурой.
Код объекта: 2013298. Уникальное предложение на рынке недвижимости Новосибирска — просторная однокомнатная квартира в монолитной новостройке по адресу Дачная улица, 2. Квартира расположена на шестом этаже шестиэтажного дома, построенного в 2025 году. Общая площадь квартиры составляет 37,5 квадратных метров, из которых 22,8 квадратных метров приходится на жилую площадь, а 5,3 квадратных метров — на кухню. В квартире есть балкон и лоджия, а окна выходят на улицу. Санузел совмещённый. Квартира продаётся без отделки, что даёт возможность новому владельцу воплотить свои дизайнерские идеи и создать уютное пространство по своему вкусу. Можно сделать двухкомнатную студию.Дом расположен в развитом районе с хорошей инфраструктурой. Рядом есть всё необходимое для комфортной жизни: магазины, школы, детские сады и медицинские учреждения. Удобная транспортная развязка позволяет быстро добраться до любой точки города. Звоните нам прямо сейчас, чтобы узнать больше и записаться на просмотр. Мы гарантируем безопасную сделку и юридическую поддержку нашим клиентам. Поможем одобрить ипотеку с сниженной ставкой.