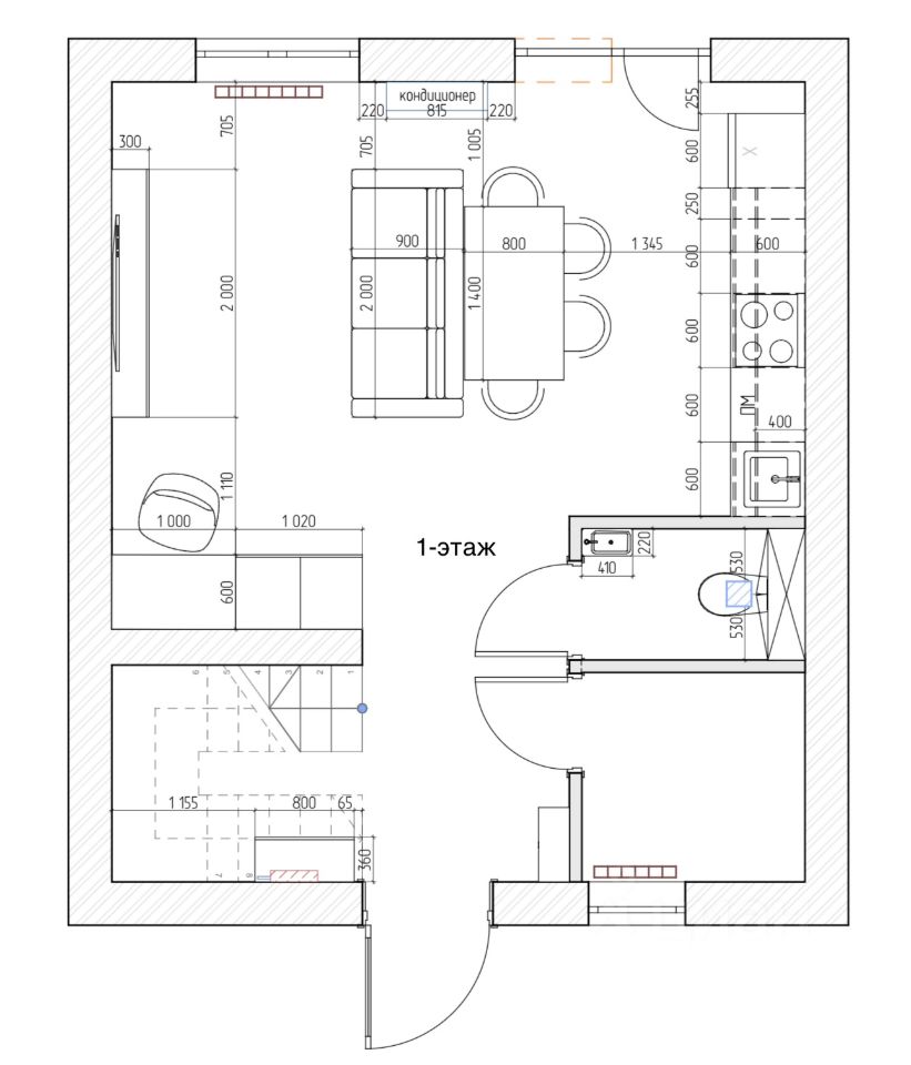
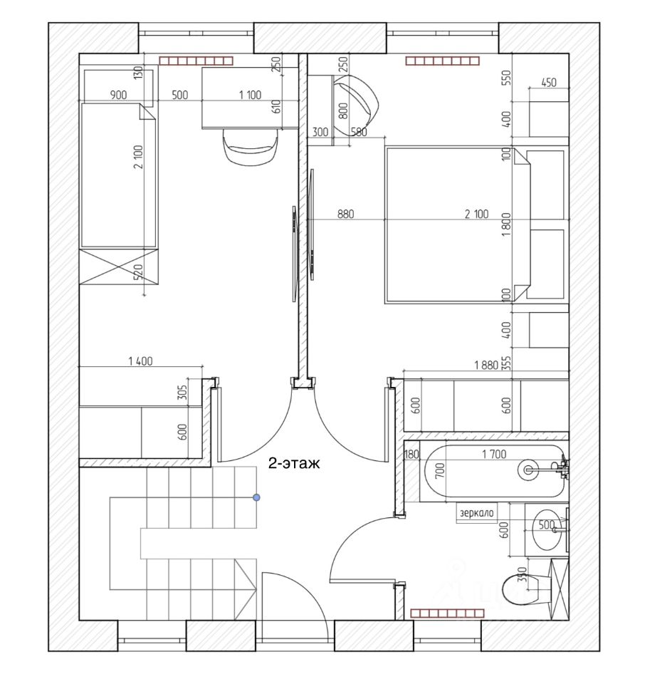
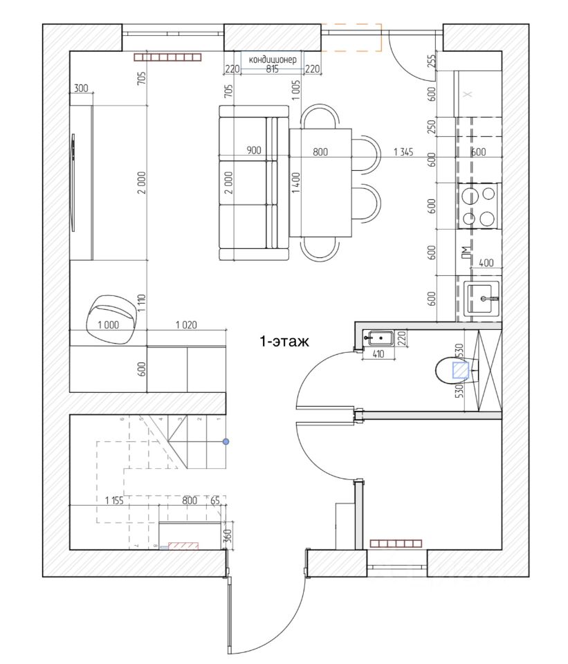
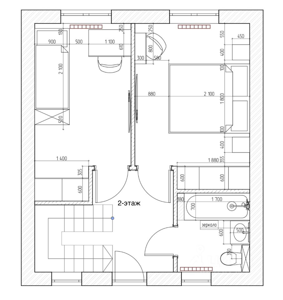
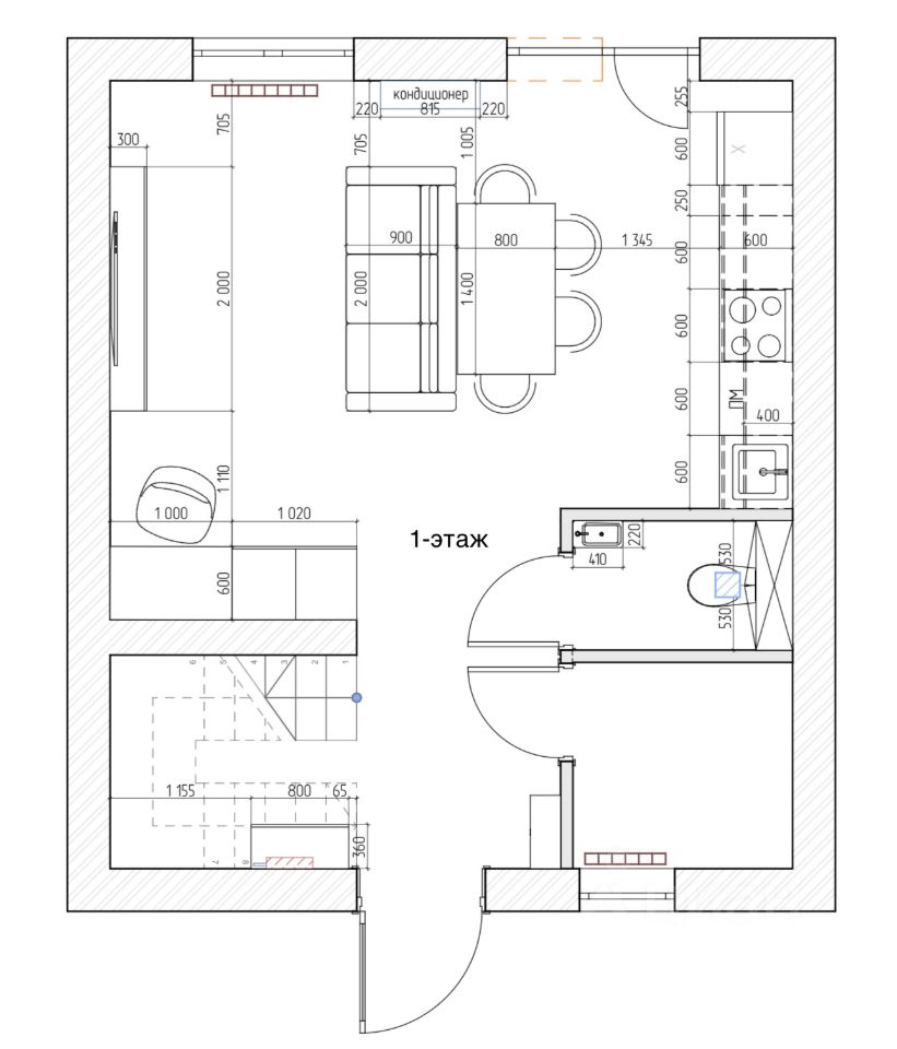
Продам Таунхаус, дом построен и сдан в 2025 году, разработан дизайн проект по которому можно производить ремонт, так же уже возведены перегородки на 1-этаже.
Таунхаус расположен в быстро развивающимся поселке Грин Парк, построен магазин Пятерочка на въезде в поселок, остановка общественного транспорта








