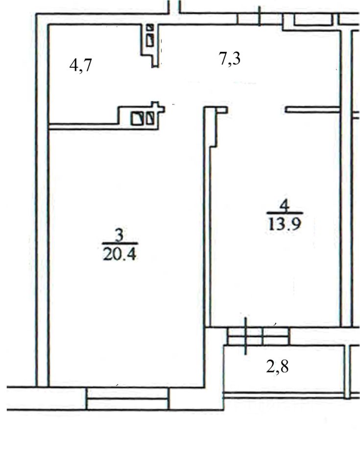
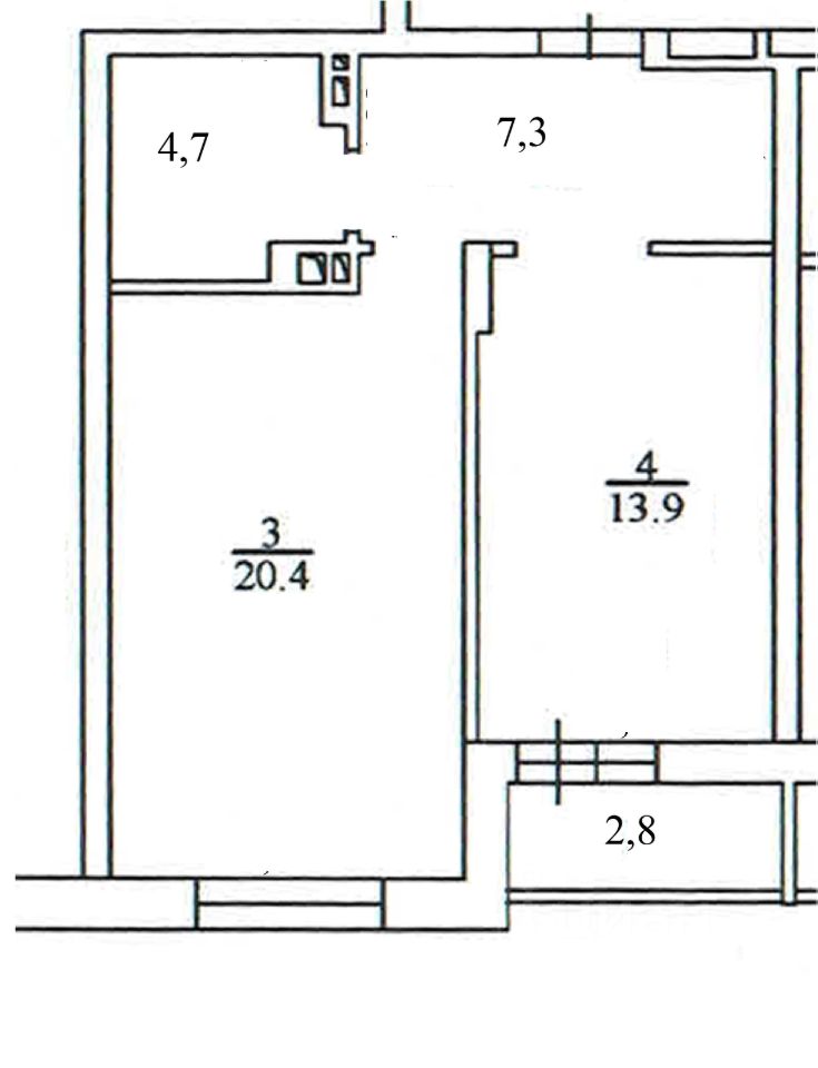
Чистая уютная теплая квартира со свежим ремонтом в новом доме, хорошие тихие соседи, считается однокомнатной, но практически как двухкомнатная, потому что кухня 20.4 кв. м - это гостиная плюс кухня. Есть мебель, двуспальная кровать, шкаф, плита металлокерамика, новая микроволновка, холодильник, ванна, гигиенический душ, стиральная машина, бойлер. Закрытый двор, большая охраняемая парковка для машин, лифт пассажирский и грузовой
Предоплата за 1 месяц
Залог 25 000 ₽












