Если цена в объявлении изменится, мы сразу сообщим вам об этом на электронную почту.
Нажимая «Подписаться», вы соглашаетесь с правилами.
продам 3-к, Зорге, 179/13 123 000 ₽
19 янв
Дата публикации объявления
Обн. 18 мая
Дата обновления объявления
183
Количество просмотров (+ просмотры за сегодня)
64 392 ₽/м²
Чистая продажа
Термин "Чистая продажа" означает, что в квартире никто не прописан или
есть куда выписаться и вывезти вещи. Это лучший вариант для покупателя.
Вероятность срыва сделки минимальна.
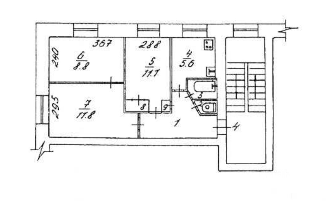
Продается квартира, 48,5 кв. м, г. Новосибирск, ул. Зорге, д. 179/1. Количество комнат: 3 Этаж: 2/5 Тип дома: кирпичный. Год постройки: 1975 г. Общая площадь: 48,5 кв.м. Жилая площадь: 31,7 кв.м. Площадь кухни: 5,6 кв.м. Санузел: раздельный. Наличие балкона: нет. Наличие лифта: нет. Ремонт: информация отсутствует. Квартира расположена в Затулинском жилмассиве Кировского района. Тихое место, насыщенное парками, скверами, спортивными площадками, детскими садами, школами, магазинами. Рядом с домом расположены стадион, бассейн, крытый каток, кинотеатр. Территория дома хорошо благоустроена. В шаговой доступности остановка общественного транспорта. Существующие обременения: проживание и регистрация третьих лиц.
Продается квартира, 48,5 кв. м, г. Новосибирск, ул. Зорге, д. 179/1. Количество комнат: 3 Этаж: 2/5 Тип дома: кирпичный. Год постройки: 1975 г. Общая площадь: 48,5 кв.м. Жилая площадь: 31,7 кв.м. Площадь кухни: 5,6 кв.м. Санузел: раздельный. Наличие балкона: нет. Наличие лифта: нет. Ремонт: информация отсутствует. Квартира расположена в Затулинском жилмассиве Кировского района. Тихое место, насыщенное парками, скверами, спортивными площадками, детскими садами, школами, магазинами. Рядом с домом расположены стадион, бассейн, крытый каток, кинотеатр. Территория дома хорошо благоустроена. В шаговой доступности остановка общественного транспорта. Существующие обременения: проживание и регистрация третьих лиц. Способ продажи: прямая продажа, покупка за счет собственных/ кредитных средств. Сделка может быть зарегистрирована с использованием сервиса электронной регистрации. Условия реализации можно уточнить по телефону.