Если цена в объявлении изменится, мы сразу сообщим вам об этом на электронную почту.
Нажимая «Подписаться», вы соглашаетесь с правилами.
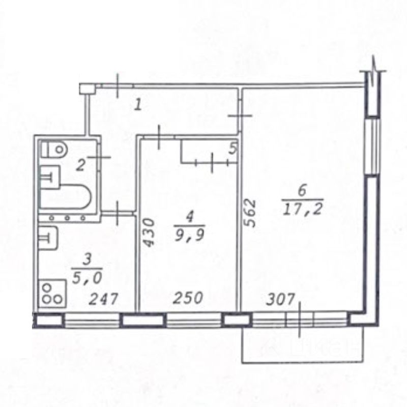
продам 2-к, Иванова, 415 190 000 ₽
19 янв
Дата публикации объявления
Обн. 22 апр
Дата обновления объявления
74
Количество просмотров (+ просмотры за сегодня)
120 979 ₽/м²
Чистая продажа
Термин "Чистая продажа" означает, что в квартире никто не прописан или
есть куда выписаться и вывезти вещи. Это лучший вариант для покупателя.
Вероятность срыва сделки минимальна.