Продаётся уютный и современный двухэтажный дом в КП ''Аляска'', расположенный по адресу: Россия, Новосибирский район, Станционный сельсовет, улица Михаила Гвоздева 28. Это идеальное место для тех, кто ищет комфортное жильё в тихом и спокойном районе.
Земельный участок площадью 7.6 соток!
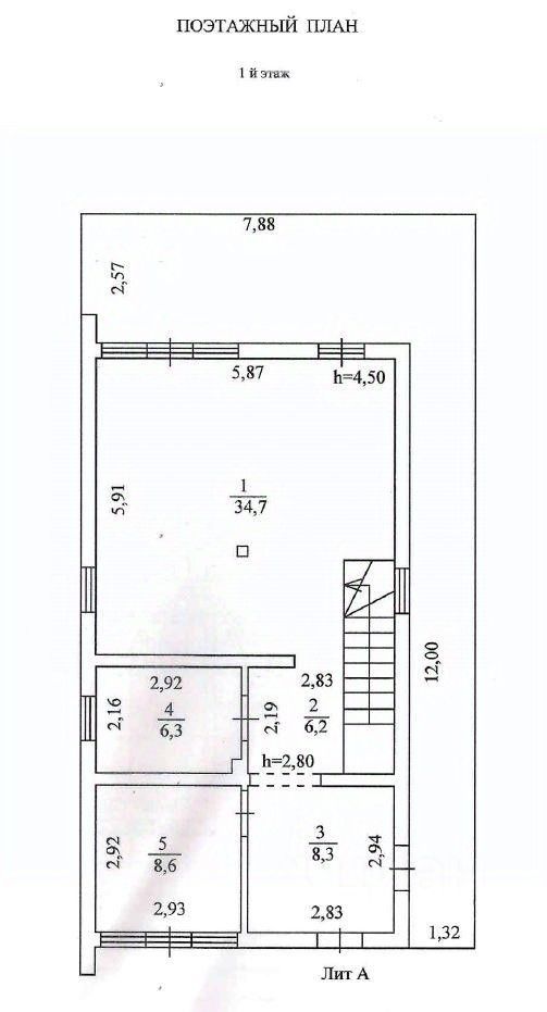
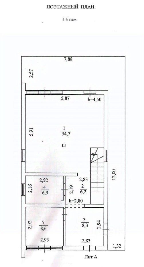
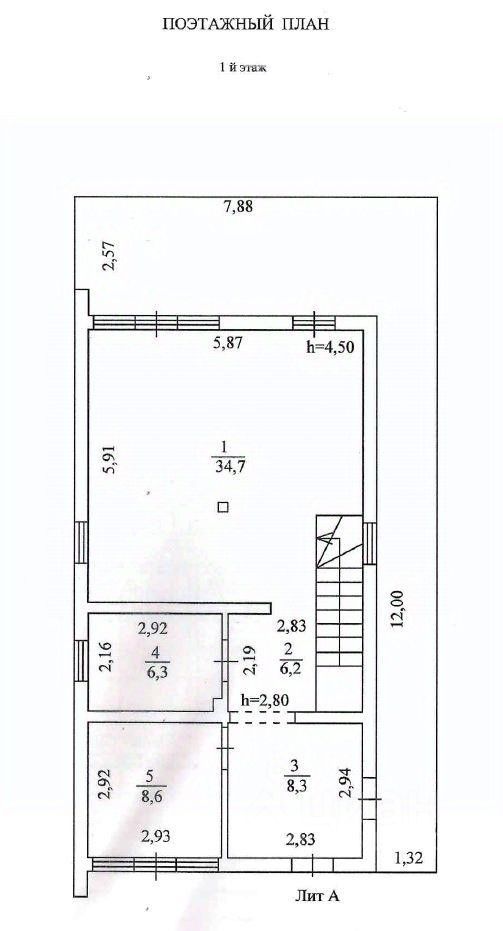
Дом общей площадью 110 кв.м. плюс 20 кв.м. терасса. (обратите внимание на фото)
Удобное расположение:
10 минут до станции Мочище - легко добраться куда нужно,
20 минут до Новосибирска - баланс тишины и доступности городской инфраструктуры.
Звоните! Просмотры по договоренности!








































