Термин "Чистая продажа" означает, что в квартире никто не прописан или
есть куда выписаться и вывезти вещи. Это лучший вариант для покупателя.
Вероятность срыва сделки минимальна.
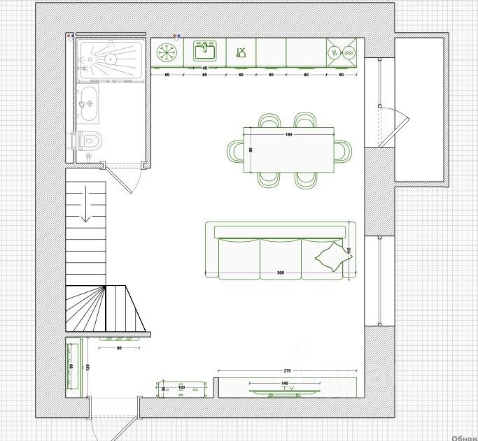
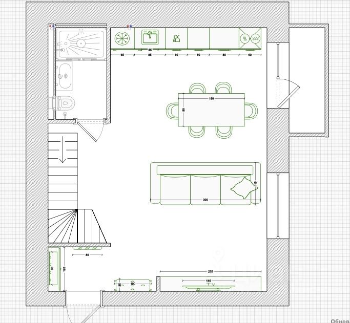
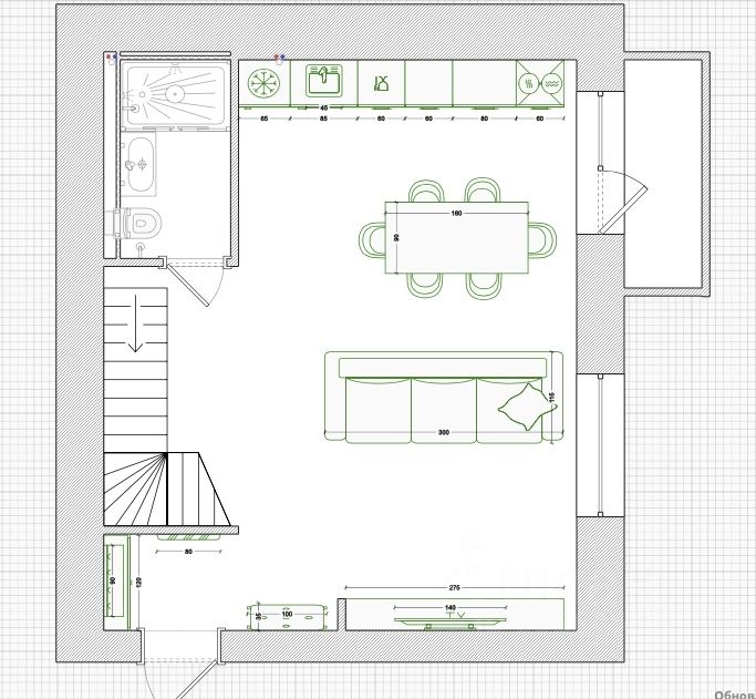
Двухуровневая квартира в Тихом центре с шикарным видом на театр оперы и балета. Уникальное предложение! Квартира общей площадью 98,2 кв. м, расположена на 9 и 10 этаже 10-этажного кирпичного дома. Современная планировка: просторная кухня-гостиная на первом этаже, гостевой с/у с душевой, на втором этаже три комнаты, гардеробная, с/у с ванной, прачечная. Выполнен полный демонтаж, заменена вся электрика и сантехника, стены оштукатурены. Можно приступать к чистовой отделке. Отличное месторасположение! До станции метро ''Площадь Ленина'' 7-10 минут. Район благоустроен и идеально подходит для семейного проживания. По прописке дом относится к Гимназии 10.
Двухуровневая квартира в Тихом центре с шикарным видом на театр оперы и балета. Уникальное предложение! Квартира общей площадью 98,2 кв. м, расположена на 9 и 10 этаже 10-этажного кирпичного дома. Современная планировка: просторная кухня-гостиная на первом этаже, гостевой с/у с душевой, на втором этаже три комнаты, гардеробная, с/у с ванной, прачечная. Выполнен полный демонтаж, заменена вся электрика и сантехника, стены оштукатурены. Можно приступать к чистовой отделке. Отличное месторасположение! До станции метро ''Площадь Ленина'' 7-10 минут. Район благоустроен и идеально подходит для семейного проживания. По прописке дом относится к Гимназии 10. В шаговой доступности театры, рестораны, клиники и магазины, все необходимые объекты инфраструктуры рядом, что делает жизнь здесь удобной и комфортной. Возможна продажа квартиры в ипотеку, желательно Альфа банк. Все документы готовы к сделке. Быстрый выход на сделку. Звоните прямо сейчас, чтобы узнать подробности и договориться о встрече.