Предлагается к продаже эксклюзивная квартира, вход в которую осуществляется через отдельный подъезд, недоступный для других жильцов!
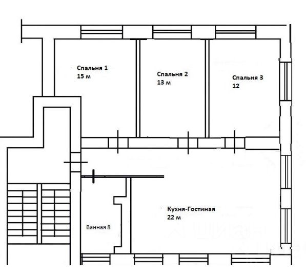
К площади 80 кв.метров добавляется 20 кв.метров пространства для хранения крупногабаритных вещей, велосипедов и колясок.
В 2024 году выполнен капитальный ремонт с заменой электропроводки, сантехники и заливкой пола. Установлена система ''теплый пол'' и кондиционирования.
Три спальные комнаты и кухня гостиная оборудованы современной качественной мебелью и техникой, которая остается покупателю.
Без обременений, полная стоимость в договоре, готовность к быстрому выходу на сделку с передачей ключей в день полного расчета.



















