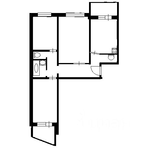
Продаётся просторная трёхкомнатная квартира в Новосибирске на Спортивной улице, 23. Общая площадь — 72 кв. м, расположена на 8 этаже 10-этажного панельного дома, построенного в 2016 году. Высота потолков составляет 2,5 метра, что придаёт квартире дополнительное пространство. До станции метро ''Площадь Маркса'' можно добраться на автомобиле за 12 минут.
в квартире в двух комнатах, на кухне и в коридоре полностью сделан ремонт. в одной комнате и в санузлах - ремонт от застройщика. Площадь кухни — 13 кв. м, что дает достаточно места для семейных обедов и кулинарных экспериментов. В квартире есть одна лоджия с выходом на улицу и вторая — во двор, что позволяет выбрать вид по настроению. Санузел — отдельный.
Продаётся просторная трёхкомнатная квартира в Новосибирске на Спортивной улице, 23. Общая площадь — 72 кв. м, расположена на 8 этаже 10-этажного панельного дома, построенного в 2016 году. Высота потолков составляет 2,5 метра, что придаёт квартире дополнительное пространство. До станции метро ''Площадь Маркса'' можно добраться на автомобиле за 12 минут.
в квартире в двух комнатах, на кухне и в коридоре полностью сделан ремонт. в одной комнате и в санузлах - ремонт от застройщика. Площадь кухни — 13 кв. м, что дает достаточно места для семейных обедов и кулинарных экспериментов. В квартире есть одна лоджия с выходом на улицу и вторая — во двор, что позволяет выбрать вид по настроению. Санузел — отдельный.
Дом в отличном состоянии, с наземной парковкой, поэтому всегда можно найти место для автомобиля. В доме есть пассажирский лифт и пандус, поэтому доступ в квартиру будет удобным и для семей с детьми, и для пожилых людей.
Район очень удобный для жизни: рядом расположены детские сады и магазины, что делает его идеальным для семей с детьми. Хорошая транспортная доступность позволяет быстро добраться до центра города и других районов.
Продажа квартиры осуществляется от собственника, поэтому сделки будут прозрачными и безопасными. Возможна покупка в ипотеку, детали обсуждаются при встрече.
Приходите на просмотр, чтобы оценить все преимущества этой квартиры. Звоните и записывайтесь на удобное для вас время. Мы будем рады показать вам ваш будущий дом!