Если цена в объявлении изменится, мы сразу сообщим вам об этом на электронную почту.
Нажимая «Подписаться», вы соглашаетесь с правилами.
продам коттедж, Березовая16 300 000 ₽
23 дек
Дата публикации объявления
Обн. вчера
Дата обновления объявления
10
Количество просмотров (+ просмотры за сегодня)
55 123 ₽/м²
Чистая продажа
Термин "Чистая продажа" означает, что в квартире никто не прописан или
есть куда выписаться и вывезти вещи. Это лучший вариант для покупателя.
Вероятность срыва сделки минимальна.
Этажей2
Площадь участка6,83 соток
Общая площадь295,7 м2
ЭлектричествоЕсть
Газоснабжениецентральное
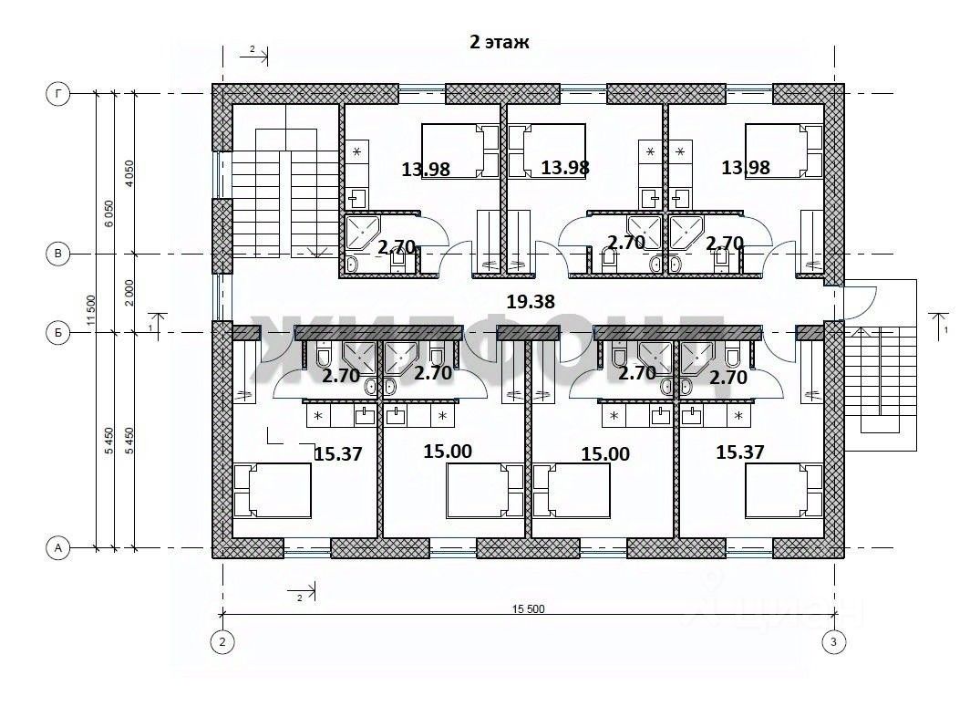
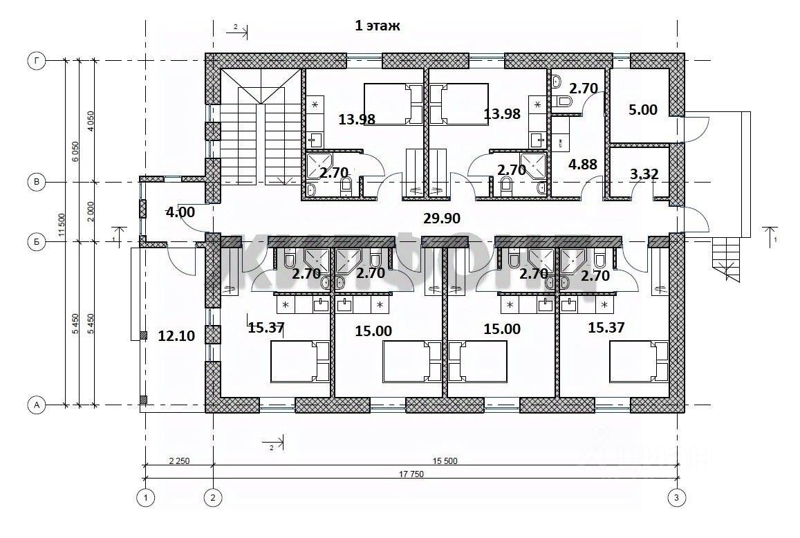
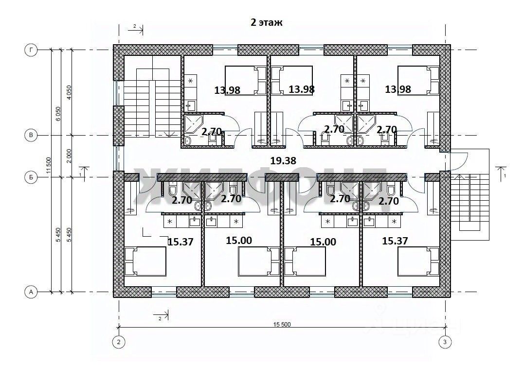
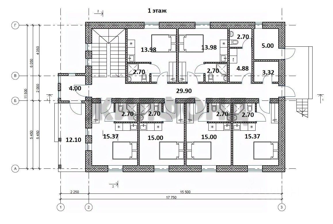
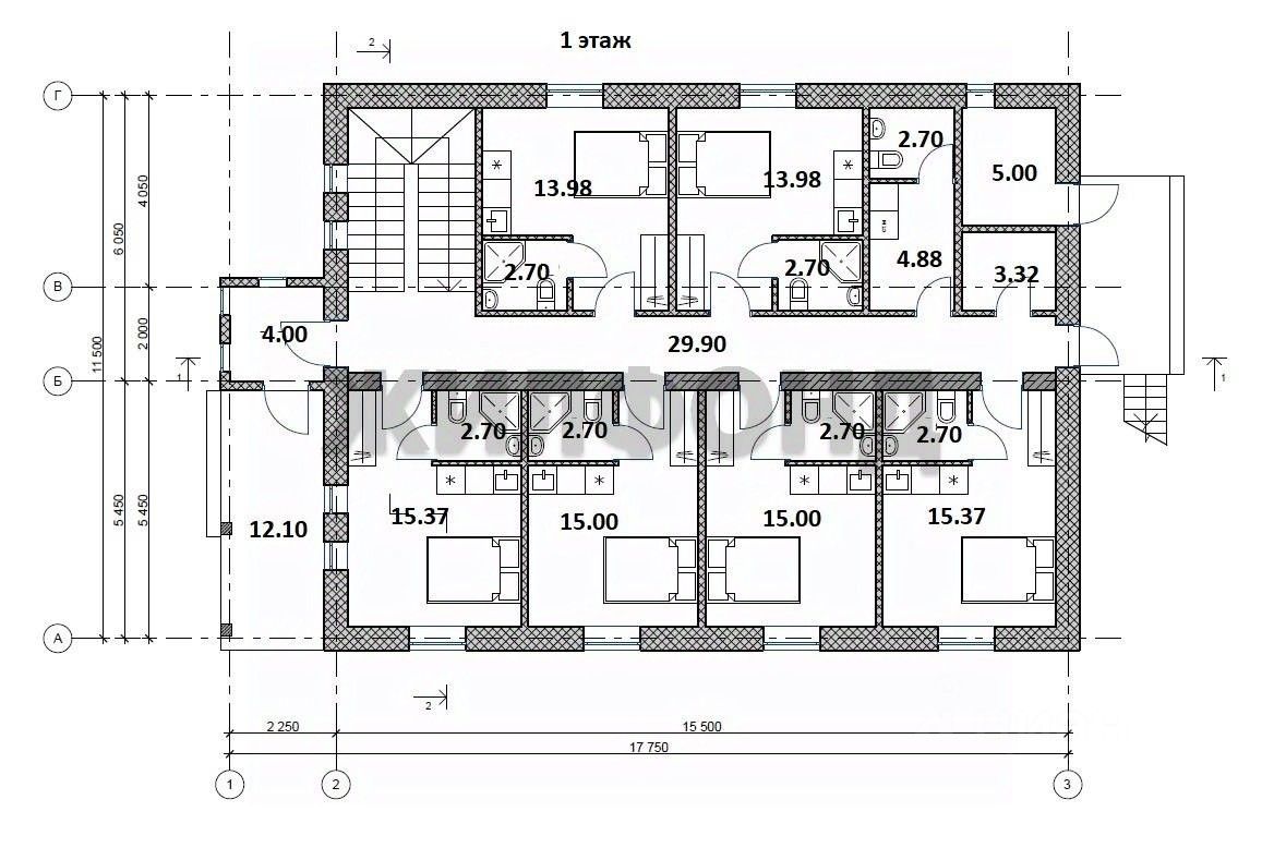
Предлагается к продаже просторный 2-х этажный жилой дом общей площадью 295,7 кв. м., состоящий из 13 квартир-студий, которые сданы в аренду на долгосрочный период. Каждая студия оснащена отдельной кухонной зоной, всей необходимой мебелью и техникой, санузлом (туалет, ванная). Дом располагается в селе Раздольное, Новосибирского района в 15 минутах езды до станции метро ''Золотая Нива''. Дом возведен из газобетона с железобетонными перекрытиями. Газовое отопление. Центральный водопровод. Автономная канализация. Парковка на 10 автомобилей. Также есть отдельно стоящий капитальный гараж из сэндвич-панелей на 4 машина места с автоматическими воротами, площадью 54 кв.м. Территория дома закрытая, ворота автоматические с пультом управления.
Предлагается к продаже просторный 2-х этажный жилой дом общей площадью 295,7 кв. м., состоящий из 13 квартир-студий, которые сданы в аренду на долгосрочный период. Каждая студия оснащена отдельной кухонной зоной, всей необходимой мебелью и техникой, санузлом (туалет, ванная). Дом располагается в селе Раздольное, Новосибирского района в 15 минутах езды до станции метро ''Золотая Нива''. Дом возведен из газобетона с железобетонными перекрытиями. Газовое отопление. Центральный водопровод. Автономная канализация. Парковка на 10 автомобилей. Также есть отдельно стоящий капитальный гараж из сэндвич-панелей на 4 машина места с автоматическими воротами, площадью 54 кв.м. Территория дома закрытая, ворота автоматические с пультом управления. Есть видеонаблюдение по периметру участка и на всех этажах в доме. Территория вокруг дома заасфальтирована, граничит с березовым лесом, на границе участка находится большой водоем с проточной водой. В шаговой доступности есть все, что необходимо для комфортной жизни: школа, медицинские учреждения, аптеки, разнопрофильные магазины и супермаркеты, остановки общественного транспорта.
Можно использовать под гостиницу, сдачу в аренду или частный пансионат для пожилых людей (расчет доходности предоставляется по запросу). Подходит под любую форму расчета.'' '''' ''
Возможен обмен на вашу недвижимость. Возможна продажа в рассрочку.
Комплексная услуга для покупателя с полной финансовой ответственностью агентства При звонке, пожалуйста, сообщите номер варианта - JV008054152328
Дополнительно оплачивается комиссия с покупателя.
Пожалуйста, дождитесь ответа специалиста при звонке. Время дозвона до владельца объявления увеличено из-за использования подменных номеров на сайте Циан.