Если цена в объявлении изменится, мы сразу сообщим вам об этом на электронную почту.
Нажимая «Подписаться», вы соглашаетесь с правилами.
продам дом, Октябрьский8 500 000 ₽
8 дек
Дата публикации объявления
Обн. 8 мар
Дата обновления объявления
14
Количество просмотров (+ просмотры за сегодня)
86 294 ₽/м²
Чистая продажа
Термин "Чистая продажа" означает, что в квартире никто не прописан или
есть куда выписаться и вывезти вещи. Это лучший вариант для покупателя.
Вероятность срыва сделки минимальна.
Этажей1
Площадь участка6 соток
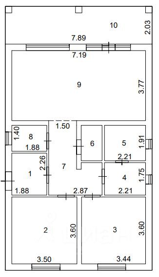
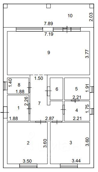
Общая площадь98,5 м2
Материал домакирпич
ЭлектричествоЕсть
Газоснабжениецентральное
Жилой 2-х комнатный дом 1эт. с сауной, тепловой контур 98,5м2 (с террасой 15,6м2) + участок 600м2 (15м*40м). Площадь застройки 112,1м2. Возможен обмен на вторичную недвижимость. Дом на кадастровом учете. Суперцена с расчетом до Нового года! Фундамент свайно-ростверковый с утеплением ЭППС 5см + плита 10см по уплотненному основанию с утеплением ЭППС 10см, залита бетонная отмостка по периметру фундамента, выполнено бетонное крыльцо. Стены (супертеплые) внутренняя штукатурка + кирпич 25см + утеплитель (минвата) 15см, элементы декоративной обшивки планкеном. Потолок (высота 2,9м) утепленные минвата 20см, холодная неэсплуатируемая мансарда.
Жилой 2-х комнатный дом 1эт. с сауной, тепловой контур 98,5м2 (с террасой 15,6м2) + участок 600м2 (15м*40м). Площадь застройки 112,1м2. Возможен обмен на вторичную недвижимость. Дом на кадастровом учете. Суперцена с расчетом до Нового года! Фундамент свайно-ростверковый с утеплением ЭППС 5см + плита 10см по уплотненному основанию с утеплением ЭППС 10см, залита бетонная отмостка по периметру фундамента, выполнено бетонное крыльцо. Стены (супертеплые) внутренняя штукатурка + кирпич 25см + утеплитель (минвата) 15см, элементы декоративной обшивки планкеном. Потолок (высота 2,9м) утепленные минвата 20см, холодная неэсплуатируемая мансарда. Инженерные коммуникации - разводка канализации, трубы теплого пола + коллектор, электрокотел 9квт, разводка горячей/холодной воды, разводка электрики, 4-канальная вентиляция в кирпичной трубе, септик (бетонные кольца) 4,77м3, подземный завод электрокабеля и водопроводной трубы в дом, электросчетчик, выполнено заземление . Окна профиль Veka (5-й камерный), кэшированные (антрацит), замкнутое армирование профиля 2мм. Крыша металлопрофиль 0,48мм (антрацит), подшиты софиты. Дверь входная 1,5мм термодверь Мегатрон (антрацит).