Если цена в объявлении изменится, мы сразу сообщим вам об этом на электронную почту.
Нажимая «Подписаться», вы соглашаетесь с правилами.
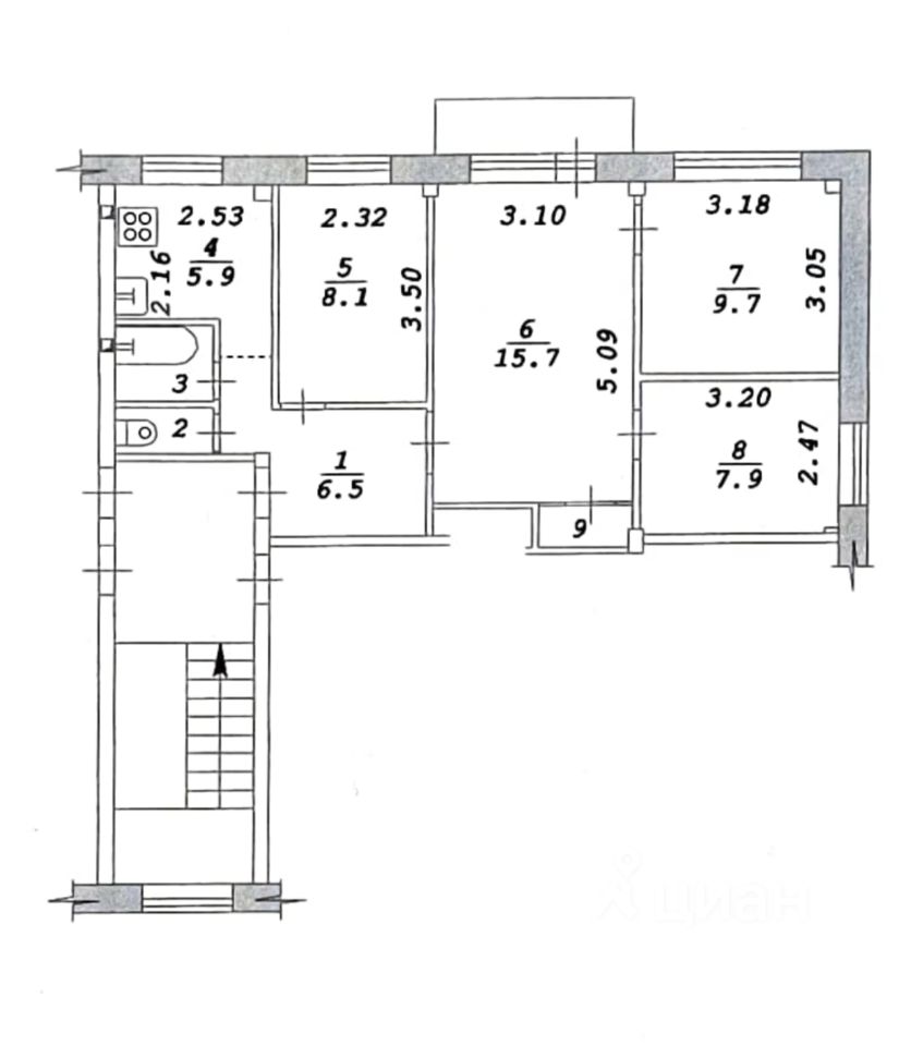
продам 4-к, Солидарности, 784 150 000 ₽
8 дек
Дата публикации объявления
Обн. 8 мая
Дата обновления объявления
46
Количество просмотров (+ просмотры за сегодня)
71 552 ₽/м²
Чистая продажа
Термин "Чистая продажа" означает, что в квартире никто не прописан или
есть куда выписаться и вывезти вещи. Это лучший вариант для покупателя.
Вероятность срыва сделки минимальна.
Продается просторная 4-комнатная квартира, требующая ремонта. Идеальный проект для семьи в обжитом районе. Главные преимущества предложения: Большая площадь и классическая планировка: Просторные изолированные комнаты (возможна выделенная детская, кабинет, гостиная), раздельный санузел. Идеально для большой или многопоколенной семьи. Цена ниже рынка за счет состояния: Уникальная возможность приобрести квартиру увеличенной площади по выгодной цене. Ваши вложения в ремонт окупятся сторицей и останутся с вами в виде комфорта и увеличенной рыночной стоимости. Спокойная и развитая локация: Квартира расположена в благоустроенном военном городке с охраняемой территорией, ухоженными дворами и предсказуемым, спокойным контингентом соседей.
Продается просторная 4-комнатная квартира, требующая ремонта. Идеальный проект для семьи в обжитом районе. Главные преимущества предложения: Большая площадь и классическая планировка: Просторные изолированные комнаты (возможна выделенная детская, кабинет, гостиная), раздельный санузел. Идеально для большой или многопоколенной семьи. Цена ниже рынка за счет состояния: Уникальная возможность приобрести квартиру увеличенной площади по выгодной цене. Ваши вложения в ремонт окупятся сторицей и останутся с вами в виде комфорта и увеличенной рыночной стоимости. Спокойная и развитая локация: Квартира расположена в благоустроенном военном городке с охраняемой территорией, ухоженными дворами и предсказуемым, спокойным контингентом соседей. Всё для жизни — в шаговой доступности: Не нужно думать о логистике. Рядом есть всё необходимое для комфортной жизни с детьми.
Главный козырь: Идеальная инфраструктура для семьи Здравоохранение: В непосредственной близости находится госпиталь. Это означает не только доступ к квалифицированной медицинской помощи, но и стабильный контингент медицинских работников в районе. Образование и дети: В пешей доступности хорошая школа с, как правило, сильным педагогическим составом и традициями, а также детские сады. Дорога до учебы и садика будет безопасной и займет несколько минут. Бытовые удобства: На территории городка обычно есть вся необходимая инфраструктура: магазины, почта, парикмахерская, спортивная площадка. Транспорт: Удобный выезд на основные магистрали, остановка общественного транспорта рядом. взрослый собственник. дополнительно оплачивается комиссия с покупателя. Без обременений.