Если цена в объявлении изменится, мы сразу сообщим вам об этом на электронную почту.
Нажимая «Подписаться», вы соглашаетесь с правилами.
продам дом, Народная10 000 000 ₽
5 дек
Дата публикации объявления
Обн. 7 мая
Дата обновления объявления
53
Количество просмотров (+ просмотры за сегодня)
88 496 ₽/м²
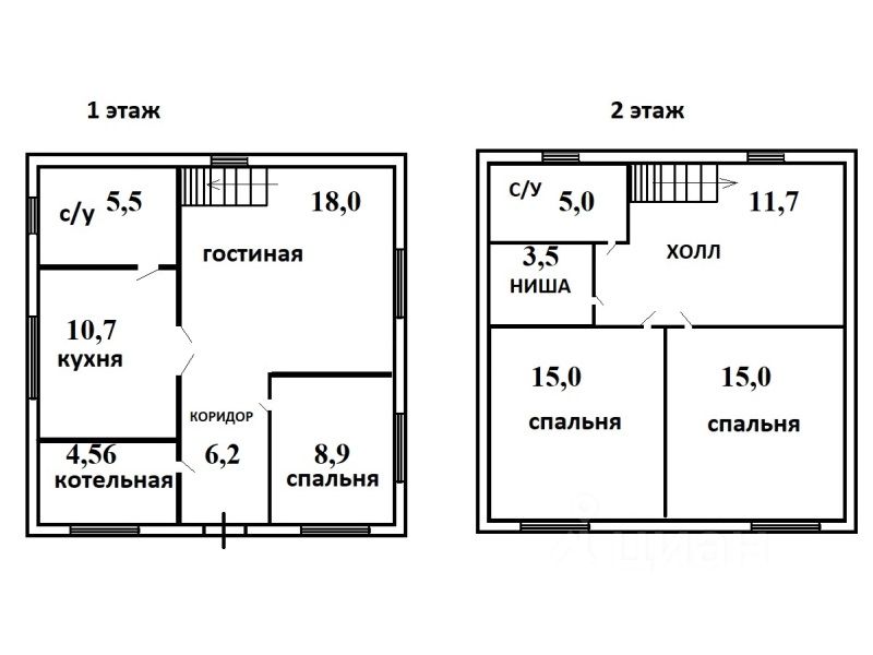
Этажей2
Площадь участка8 соток
Общая площадь113 м2
Материал домакирпич
ЭлектричествоЕсть
Газоснабжениецентральное
Дом 2013 года постройки. Дом из блоков теплостен, на бетонно-ленточном фундаменте. Централизованное водоснабжение. Отопление газовое, а так же альтернативное современный, экономичный котёл на твердое топливо. Участок ровный, с посадками, огорожен со всех сторон высоким забором из металлопрофиля. Дом расположен на окраине поселка, в тихом, красивом месте, в окружении озер и березового леса, в тоже время до центра поселка, пешим ходом около 10 минут. Ночное освещение улицы. Столбы освещения и электроподстанция новые. Коммунальные платежи маленькие: оплачиваются только вывоз мусора , потреблённые - вода, электроэнергия и газ. Документы в порядке, без обременений.
Дом 2013 года постройки. Дом из блоков теплостен, на бетонно-ленточном фундаменте. Централизованное водоснабжение. Отопление газовое, а так же альтернативное современный, экономичный котёл на твердое топливо. Участок ровный, с посадками, огорожен со всех сторон высоким забором из металлопрофиля. Дом расположен на окраине поселка, в тихом, красивом месте, в окружении озер и березового леса, в тоже время до центра поселка, пешим ходом около 10 минут. Ночное освещение улицы. Столбы освещения и электроподстанция новые. Коммунальные платежи маленькие: оплачиваются только вывоз мусора , потреблённые - вода, электроэнергия и газ. Документы в порядке, без обременений. Население посёлка: в основном разные поколения городских жителей не желающих терять связь с городом, ценящие покой и тишину вокруг своего дома, размеренный образ жизни, прогулки на природе.
Поселок Станция Мочище является административным центром муниципального образования Станционный сельсовет , ближайший пригород, в 7 км от городской черты, примыкает к Заельцовскому и Калининскому районам Новосибирска, недалеко жилмассивы- Пашино, Светлый, Удачный, Аляска. Поселок расположен на высоком месте, по этой причине не бывает водонасыщенных грунтов и подтоплений талыми водами, погреба у всех глубокие и сухие. Вокруг светлые березовые перелески, поросшие разнотравьем пологие лога, почти в каждом - озеро наполнямое ключами.
Станция Мочище славится православным храмом в честь иконы Божией Матери Скоропослушница и чудотворной, мироточащей иконой Божией Матери Иверской ''. В поселке есть школа, новые детский сад и поликлиника, почта, аптеки, несколько крупных сетевых магазинов и торговых павильонов с промышленными и хозяйственными товарами, микрорынок, ветклиника, библиотеки, Дом культуры в котором найдутся занятия по душе от детей до пенсионеров, пвз Wildberries и Ozon.
Отличное транспортное сообщение с городом: и электрички, и автобусы, и маршрутки - остановки рядом. До центра города на электричке (как на метро, по расписанию) можно доехать за 25 минут. На машине четыре (!) выезда в город:
- через п. Каменка в Дзержинский район,
- мимо Иня Восточная по ул.Тайгинская в Калининский район,
- по Северному объезду в Заельцовский район мимо п. Садовый, п. Озерный ,
- или по Северному объезду на левый берег Новосибирска в Ленинский район.
Достраивается Восточное шоссе которое пойдет от Северного объезда в южном направлении через Барышево, Кольцово, Академгородок.
Гарантированное сопровождение сделки опытными специалистами по загородной недвижимости. Поможем получить правильное кредитное решение.
Агентство местное, специалисты со стажем работы в недвижимости 20 лет, владеют полной информацией по всем объектам расположенным в округе, знаем своих продавцов не один год, с рискованными объектами не работаем. Предложим несколько аналогов, проведём сравнительный просмотр - выберете лучшее предложение в данной локации.