сдам торговые площади, Кошурникова, 9360 240 ₽ в месяц
2 дек
Дата публикации объявления
Обн. 15 мар
Дата обновления объявления
16
Количество просмотров (+ просмотры за сегодня)
1200 ₽/м² в месяц
Параметры
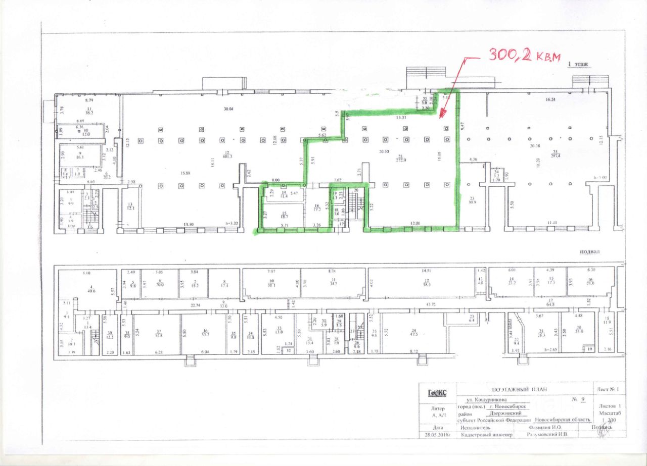
Общая площадь300,2 м2
Этаж1
Сдается торговая площадь. Лицензию на алкоголь скорее всего не получить (рядом школа в 45 метрах от дома), но нужно уточнять или можно решить с кассовой зоной. Ремонт неплохой, раньше был МАГНИТ КОСМЕТИК. Высота потолков 340 см. но там ещё армстронг (надо замерять на месте). Соседи е-Аптека (общая входная группа и общая главная дверь и крыльцо), и натяжные потолки и аксессуары(соседний вход). Парковка городская (муниципальная), но очень большая и удобная! Дополнительно оплачивается Отопление, Водоснабжение +, Э/Э. Звоните - пишите! О просмотре договариваться заранее, т.к. там ещё арендаторы. Так же с торговой площади есть вход в подвальные помещения. Там можно устроить складскую зону или еще что то полезное.! Пишите - звоните!
Сдается торговая площадь. Лицензию на алкоголь скорее всего не получить (рядом школа в 45 метрах от дома), но нужно уточнять или можно решить с кассовой зоной. Ремонт неплохой, раньше был МАГНИТ КОСМЕТИК. Высота потолков 340 см. но там ещё армстронг (надо замерять на месте). Соседи е-Аптека (общая входная группа и общая главная дверь и крыльцо), и натяжные потолки и аксессуары(соседний вход). Парковка городская (муниципальная), но очень большая и удобная! Дополнительно оплачивается Отопление, Водоснабжение +, Э/Э. Звоните - пишите! О просмотре договариваться заранее, т.к. там ещё арендаторы. Так же с торговой площади есть вход в подвальные помещения. Там можно устроить складскую зону или еще что то полезное.! Пишите - звоните! Помещение свободно с 01 января 2026!