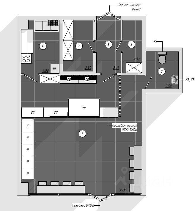
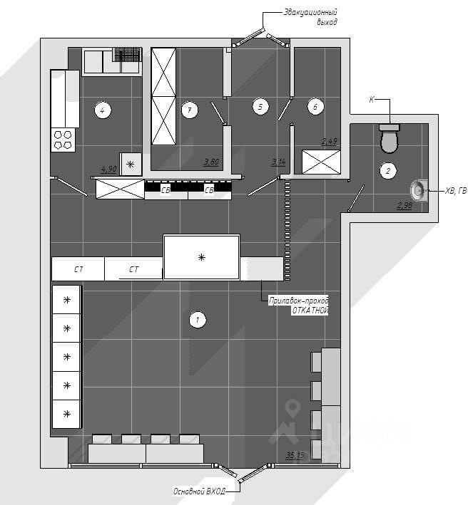
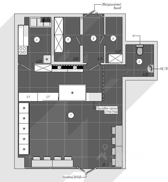
Аренда от собственника, торговое помещение в торговом комплексе на первой линии ул.Пархоменко 15. Помещение с ремонтом, с перегородками, актуальная планировка прекреплена, в целом свободная, холодильная камера, витражное остекление! Есть три фазы 380В. Два выхода, пандус разгрузки вдоль здания сзади! Газовое отопление! Рядом Мария РА, Пятерочка, Fix Price, Лента! Большой автомобильный и пешеходный трафик! Своя большая парковка!
Здание КАПИТАЛЬНОЕ, есть свидетельство о праве собственности, не времянка!!!
Я СОБСТВЕННИК!!!



















