Если цена в объявлении изменится, мы сразу сообщим вам об этом на электронную почту.
Нажимая «Подписаться», вы соглашаетесь с правилами.
продам дом, Лаки Парк кп, 73517 500 000 ₽
14 ноя
Дата публикации объявления
Обн. 21 ноя
Дата обновления объявления
61
Количество просмотров (+ просмотры за сегодня)
169 903 ₽/м²
Чистая продажа
Термин "Чистая продажа" означает, что в квартире никто не прописан или
есть куда выписаться и вывезти вещи. Это лучший вариант для покупателя.
Вероятность срыва сделки минимальна.
Этажей1
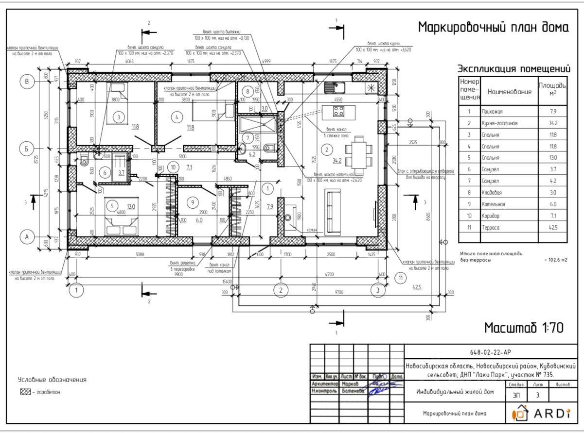
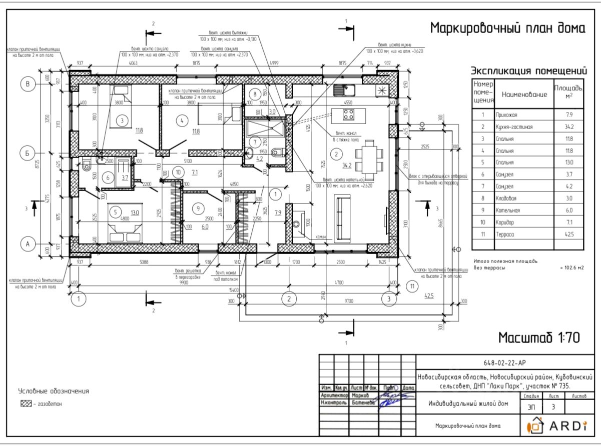
Площадь участка8 соток
Общая площадь103 м2
ЭлектричествоЕсть
Газоснабжениецентральное
Продам дом, готов к проживанию. территория вокруг дома облагорожена, высажен газон.
Дополнительнм источников отопления установлена печь в доме. Подготовлено место для газового котла.