Современный коттедж в 30 минутах езды от пл. Калинина!
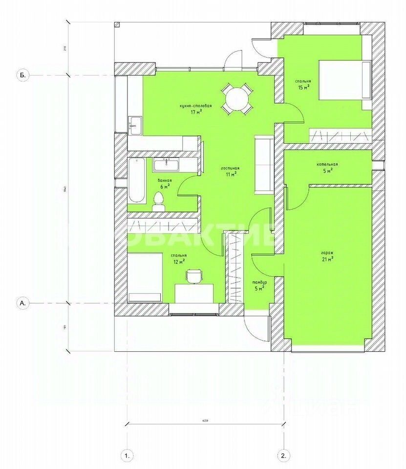
Дом на участке 8 соток, на возвышенности. Гаражный бокс с выходом в дом, две спальни и кухня-гостиная! Панорамные окна, термо-дверь, кирпичная кладка.
Земельный участок и дом стоят на кадастровом учете!
Успевайте купить по привлекательной цене!















