Аренда от собственника под Офис.
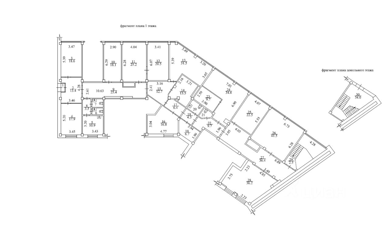
Военная 9/1, 1 этаж, общая площадь 483,8 м2.
Потолки 3 м.
Помещение с ремонтом и мебелью.
Выделенная мощность 30 кВт.
Помещения с отдельными двумя входами.
В помещении предусмотрены: кухня, 4 ре с/у, серверная, переговорная.
Пожарная сигнализация рабочая.
В каждом кабинете установлен кондиционер.
Проезд к зданию свободный, без шлагбаумов, парковочных мест от 25 50 м.м.
Арендная ставка 1550 руб./м2.
Коммунальные платежи Арендатором оплачиваются отдельно ( тепло, вода, электроэнергия, содержание жилья), а так же Арендатор отдельно заключает договора на вывоз мусора, интернет, охрану.
Обеспечительный платеж за 1 мес.
Арендные каникулы возможны по договоренности сторон.








































