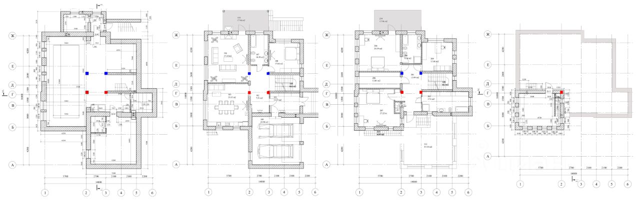
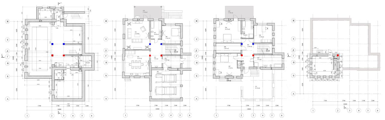
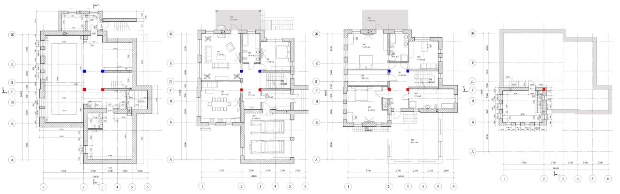
Продается коттедж, 529,6м кв, расположен на участке 0,614га в пос. Благовещенка, р-н Нижняя Ельцовка.
Коммуникации центральные:
вода, свет, газ, канализация.
Этажность: цоколь + 3 этажа,
в цоколе круглогодичный бассейн 3,5 на 11м, переменная глубина 1,2-1,7м и роскошная сауна на дровах, 8м.кв.
В доме сделан дизайнерский ремонт, теплые водяные полы.
Терраса и балконы 85м.кв. в общей площади не учтены, гараж на две машины.
Частично меблирован.
Дом расположен в тупике, рядом берёзовая роща.
В 3-х минутах остановка общественного транспорта.











