Если цена в объявлении изменится, мы сразу сообщим вам об этом на электронную почту.
Нажимая «Подписаться», вы соглашаетесь с правилами.
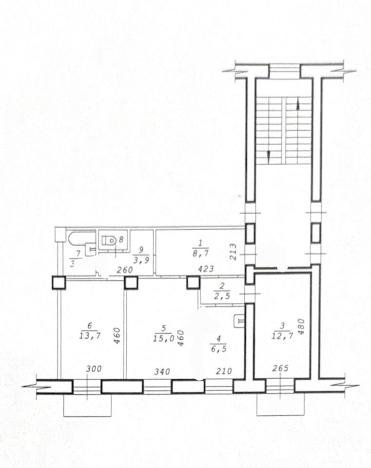
продам 3-к, Дзержинского проспект, 39 179 000 ₽
22 окт
Дата публикации объявления
Обн. 20 мая
Дата обновления объявления
100
Количество просмотров (+ просмотры за сегодня)
137 000 ₽/м²
Чистая продажа
Термин "Чистая продажа" означает, что в квартире никто не прописан или
есть куда выписаться и вывезти вещи. Это лучший вариант для покупателя.
Вероятность срыва сделки минимальна.
Продается уютная трехкомнатная квартира в кирпичном доме на 4 этаже из 5. Общая площадь составляет 67 кв. м, а кухня радует просторными 20 кв. м. Высота потолков — 3 метра, что создает ощущение дополнительного пространства.
Квартира с дизайнерским ремонтом, в которой все продумано до мелочей. Планировка обеспечивает комфорт и удобство жизни. В квартире есть два балкона, где можно наслаждаться свежим воздухом и видами. Санузел совмещенный, выполнен в современном стиле. В квартире произведен капитальный ремонт, сделана шумоизоляция, поменяна вся проводка. Квартира продается с мебелью: кухонный гарнитур, встроенный шкаф в коридоре, кондиционер, водонагреватель.
Дом в хорошем состоянии, с ухоженной придомовой территорией.
Продается уютная трехкомнатная квартира в кирпичном доме на 4 этаже из 5. Общая площадь составляет 67 кв. м, а кухня радует просторными 20 кв. м. Высота потолков — 3 метра, что создает ощущение дополнительного пространства.
Квартира с дизайнерским ремонтом, в которой все продумано до мелочей. Планировка обеспечивает комфорт и удобство жизни. В квартире есть два балкона, где можно наслаждаться свежим воздухом и видами. Санузел совмещенный, выполнен в современном стиле. В квартире произведен капитальный ремонт, сделана шумоизоляция, поменяна вся проводка. Квартира продается с мебелью: кухонный гарнитур, встроенный шкаф в коридоре, кондиционер, водонагреватель.
Дом в хорошем состоянии, с ухоженной придомовой территорией. Здесь всегда можно найти место для парковки автомобиля - въезд во двор через шлагбаум. Кирпичные стены обеспечивают надежную звукоизоляцию, поэтому в квартире тихо и уютно.
Рядом с домом расположены школы, детские сады и клиники, что делает этот вариант особенно привлекательным для семей. Также в шаговой доступности находятся магазины, где можно приобрести все необходимое. До метро можно добраться пешком всего за 13 минут, что удобно для ежедневных поездок.
Квартира продается без обременений, документы полностью готовы к сделке. Звоните и записывайтесь на просмотр. Эта квартира может стать вашим новым уютным домом!