Застройщик - Специализированный застройщик «Союз-Инвест», ООО. Проектная декларация опубликована на сайте наш.дом.рф
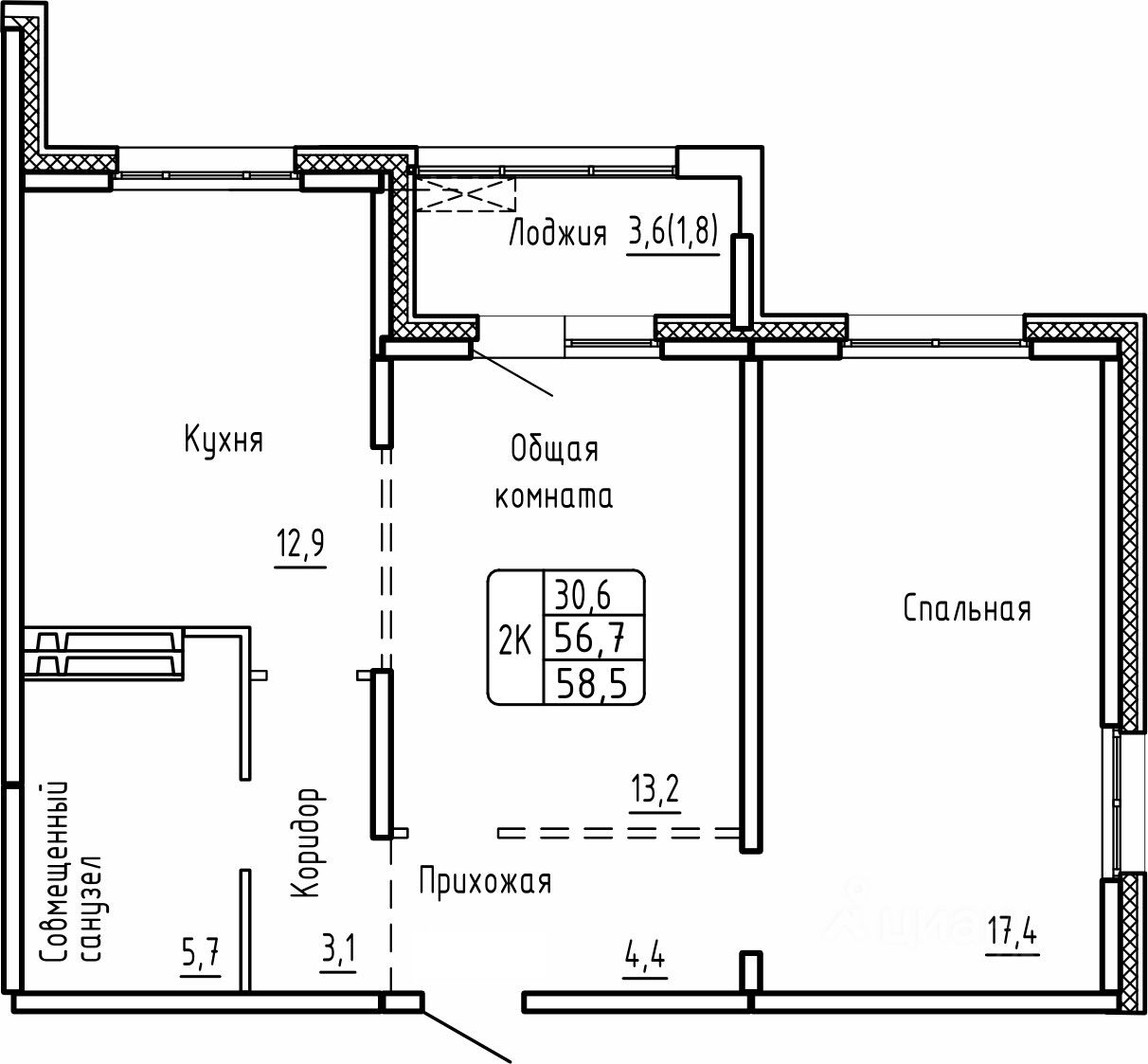
Продаётся 2-комнатная квартира в строящемся доме (Бирюза (Дом 2)), срок сдачи: II-кв. 2026, общей площадью 58.5 кв.м., на 13 этаже. Новый жилой комплекс от группы компаний ''Союз'' расположен по адресу: г. Новосибирск, по ул. Большая.