Застройщик - Альгеба, ООО. Проектная декларация опубликована на сайте наш.дом.рф
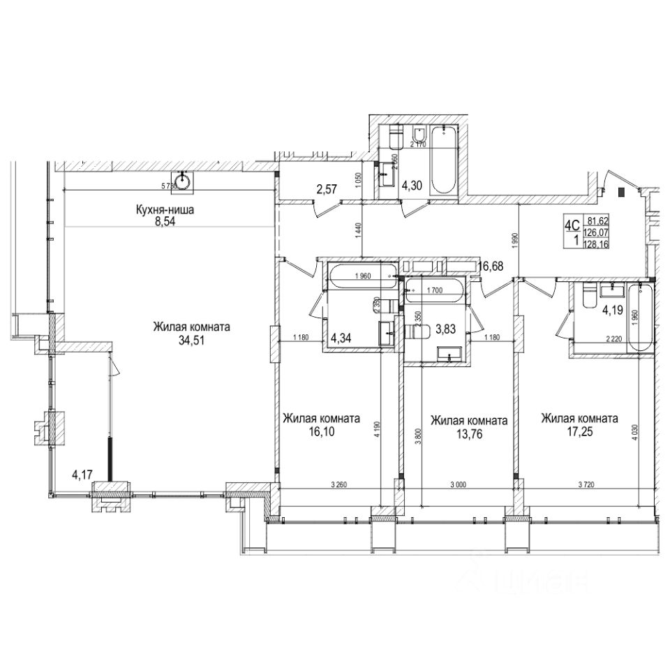
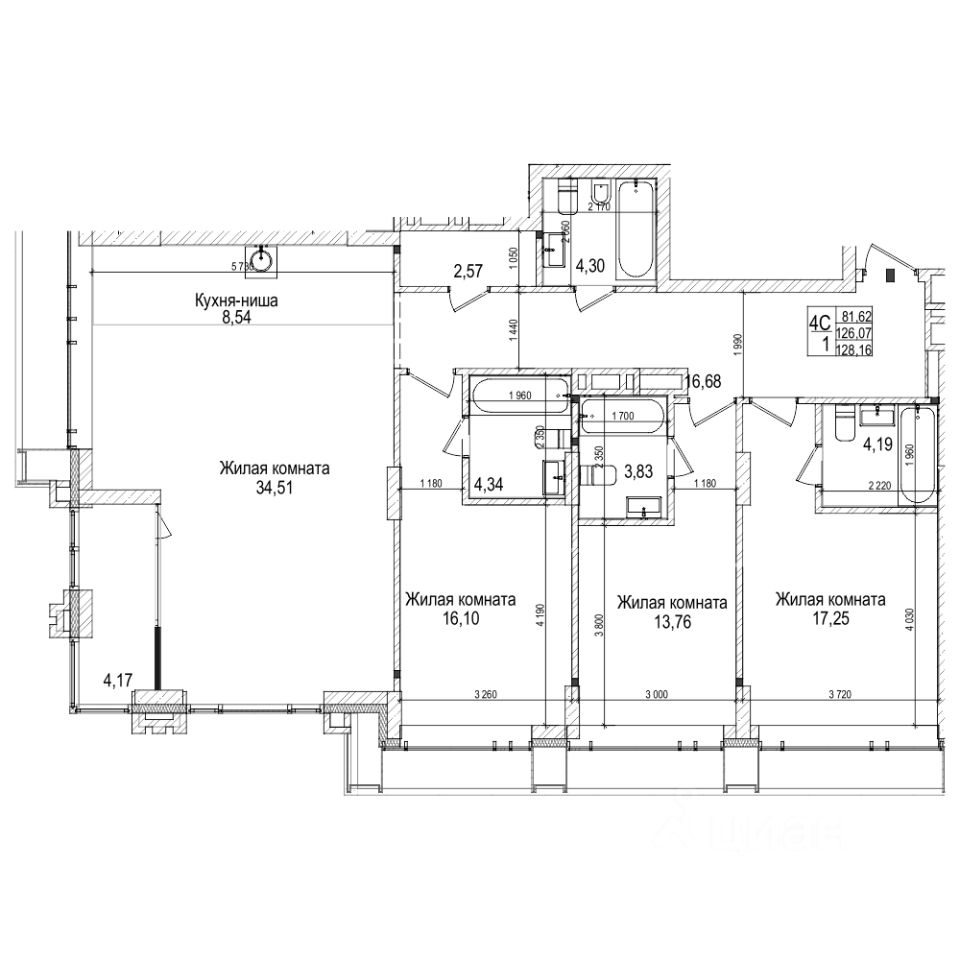
Продаётся 3-комнатная квартира в сданном доме (Дом 1), срок сдачи: I-кв. 2025, общей площадью 126 кв.м., на 25 этаже. Новый жилой комплекс ''На Горького'' от застройщика ГК Сибирьинвест расположен в г. Новосибирск в границах улиц Максима Горького, Революции и пр. Виктора Ващука.