Застройщик - Специализированный застройщик «Серебряный ключ», ООО. Проектная декларация опубликована на сайте наш.дом.рф
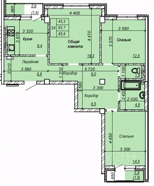
Продаётся 3-комнатная квартира в строящемся доме (Зорге, 277), срок сдачи: II-кв. 2026, общей площадью 85.6 кв.м., на 2 этаже. Жилой комплекс ''Серебряный ключ'' от одноименного застройщика расположен по адресу г. Новосибирск, ул. Зорге, 277.