Термин "Чистая продажа" означает, что в квартире никто не прописан или
есть куда выписаться и вывезти вещи. Это лучший вариант для покупателя.
Вероятность срыва сделки минимальна.
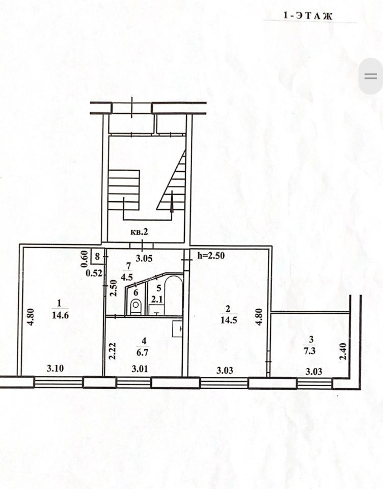
Продается светлая и уютная 3-комнатная квартира в живописном районе Барабинска, по адресу Новопокровский переулок, 32. Общая площадь квартиры составляет 50.9 кв. м, из которых 36.4 кв. м жилая площадь. Квартира расположена на первом этаже двухэтажного монолитного дома, построенного в 1979 году. Высота потолков 2.7 метра.
В квартире выполнен качественный евроремонт, поэтому можно сразу заехать и жить без необходимости дополнительных вложений. Просторная кухня площадью 6.7 кв. м станет отличным местом для семейных обедов и ужинов. Санузел в квартире раздельный, что удобно для проживания семьи. Планировка продумана до мелочей, чтобы максимально использовать пространство.
Продается светлая и уютная 3-комнатная квартира в живописном районе Барабинска, по адресу Новопокровский переулок, 32. Общая площадь квартиры составляет 50.9 кв. м, из которых 36.4 кв. м жилая площадь. Квартира расположена на первом этаже двухэтажного монолитного дома, построенного в 1979 году. Высота потолков 2.7 метра.
В квартире выполнен качественный евроремонт, поэтому можно сразу заехать и жить без необходимости дополнительных вложений. Просторная кухня площадью 6.7 кв. м станет отличным местом для семейных обедов и ужинов. Санузел в квартире раздельный, что удобно для проживания семьи. Планировка продумана до мелочей, чтобы максимально использовать пространство.
Дом находится в хорошем состоянии, а наличие наземной парковки позволит вам не беспокоиться о месте для автомобиля. Район тихий и спокойный, идеально подходит для семей с детьми или для тех, кто ценит спокойствие и комфорт.
Рядом с домом есть все необходимое для комфортной жизни: магазины, школы, детские сады и медицинские учреждения. В шаговой доступности находятся остановки общественного транспорта, что позволяет быстро добраться до центра города и других районов.
Квартира продается без обременений и юридически чиста, что упрощает процесс оформления сделки. Возможна покупка в ипотеку.
Приглашаем вас на просмотр, чтобы лично оценить все преимущества этой замечательной квартиры. Записывайтесь на удобное время, и мы с радостью покажем вам ваш будущий дом. + гараж за отдельную плату.