Код объекта: 1703332.
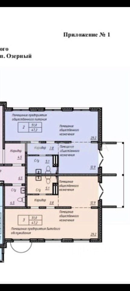
Аренда двух помещений по 51м2 .
Дом СДАН !!!
Отдельный вход.
Мокрая точка.
Подойдет под любой бизнес, Салон, Магазин, ПВЗ, офис и др.
в Доме два коммерческих помещения по 51 м2. МОЖЕМ СДАТЬ ДВА СРАЗУ ОБА 51 М2 ПОМИЩЕНИЯ СМЕЖНЫЕ.
Комплекс расстраивается, данный дом в середине комплекса, весь трафик движений через эти помещения.
Территория открытая.
Звоните!































