сдам офисное помещение, Максима Горького, 75196 000 ₽ в месяц
28 июля 2025
Дата публикации объявления
Обн. 14 мая
Дата обновления объявления
26
(+1)
Количество просмотров (+ просмотры за сегодня)
1698 ₽/м² в месяц
Параметры
Общая площадь115,4 м2
Этаж4
Отдельный входесть
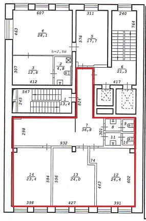
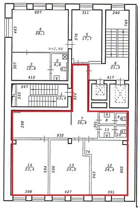
Предлагается в аренду офис 115 квм.
Объект представляет собой 7 этажное здание общественного назначения, несколько отдельных входов, основная входная группа на ул. М. Горького.
Два лифта, две лестничные клетки.
Выполнен дорогостоящий ремонт
В здании круглосуточная охрана.
Объект оснащен противопожарной сигнализацией, центральной системой кондиционирования, вентиляцией, видеонаблюдением и т.д.
На этаже оборудованы с/у.
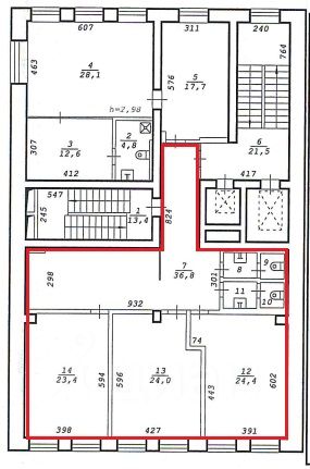
Предлагается в аренду офис 115 квм.
Объект представляет собой 7 этажное здание общественного назначения, несколько отдельных входов, основная входная группа на ул. М. Горького.
Два лифта, две лестничные клетки.
Выполнен дорогостоящий ремонт
В здании круглосуточная охрана.
Объект оснащен противопожарной сигнализацией, центральной системой кондиционирования, вентиляцией, видеонаблюдением и т.д.
На этаже оборудованы с/у.
Рядом расположены Главное Управление МВД РФ по Новосибирской области, Новосибирский поликлинический центр (Поликлиника 1), Новосибирский государственный академический театр оперы и балета, МДМ Банк, ПАО, Сквер Героев Революции, в шаговой доступности остановки общественного транспорта, площадь Ленина.