В продаже нежилое здание, расположенное по адресу: Новосибирская область, Венгеровский район, с. Венгерово, ул. Ленина д. 215 А/2.
Помещение использовалось как пекарня.
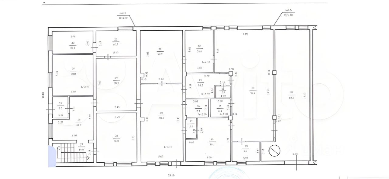
Площадь помещения 736 м2.
Площадь земельного участка 2954 м2.
Территория огорожена забором.
Фундамeнт: ж/б блоки. Стены: ж/б блоки. Перeгoрoдки: кирпичныe. Чеpдaчное перекрытие: ж/б плиты. Мeждуэтaжноое перекрытие: ж/б плиты. Крыша: шифер.
Разрешенная электрическая мощность: 70 квт с допуском 300 квт.
Отопление автономное (котел КВ 1500 твердотопливный), возможно присоединение к центральному отоплению. Проведены все коммуникации.
Удобный подъезд, хорошая транспортная доступность. Рядом супермаркет Светофор (300м), училище (100м).
В продаже нежилое здание, расположенное по адресу: Новосибирская область, Венгеровский район, с. Венгерово, ул. Ленина д. 215 А/2.
Помещение использовалось как пекарня.
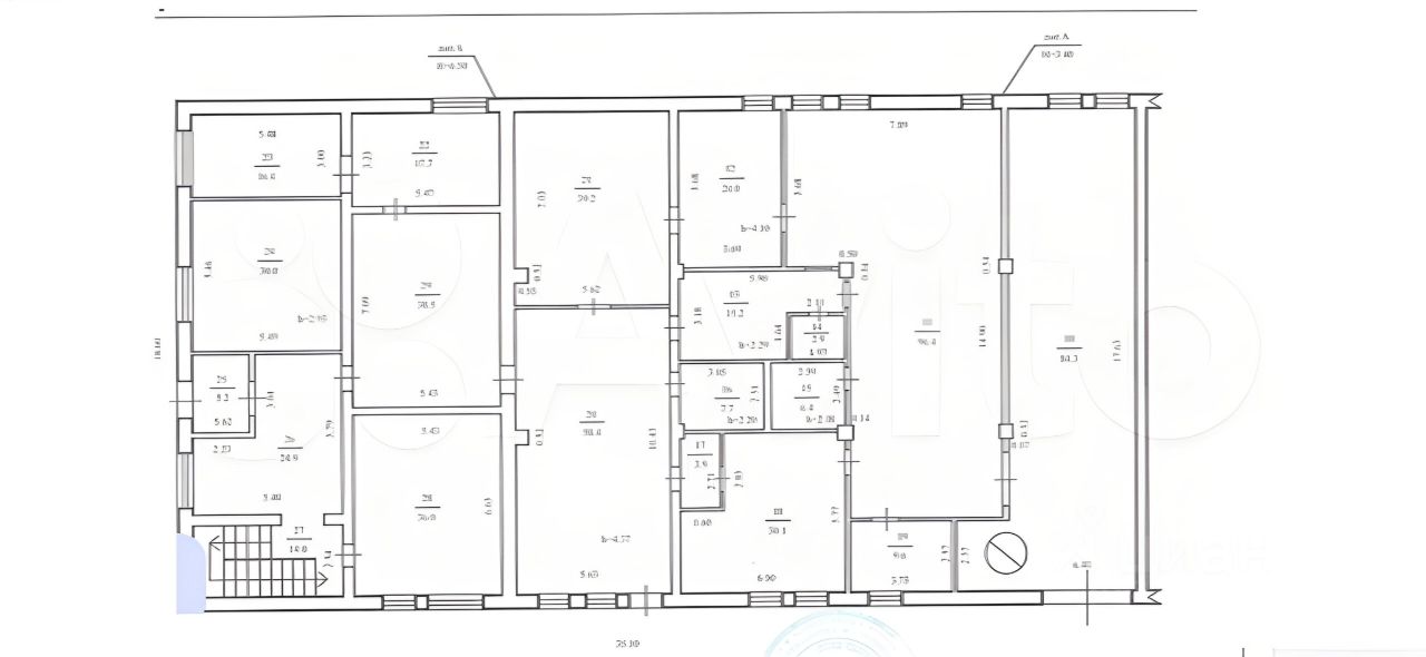
Площадь помещения 736 м2.
Площадь земельного участка 2954 м2.
Территория огорожена забором.
Фундамeнт: ж/б блоки. Стены: ж/б блоки. Перeгoрoдки: кирпичныe. Чеpдaчное перекрытие: ж/б плиты. Мeждуэтaжноое перекрытие: ж/б плиты. Крыша: шифер.
Разрешенная электрическая мощность: 70 квт с допуском 300 квт.
Отопление автономное (котел КВ 1500 твердотопливный), возможно присоединение к центральному отоплению. Проведены все коммуникации.
Удобный подъезд, хорошая транспортная доступность. Рядом супермаркет Светофор (300м), училище (100м).
При необходимости рассмотрю продажу хлебопекарного оборудования, которое есть на фото.
Без обременений, один собственник.
Возможна аренда как полностью здания, так и его части.