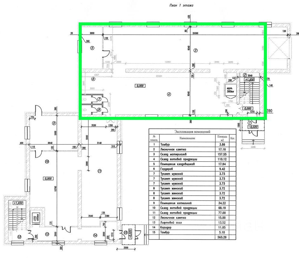
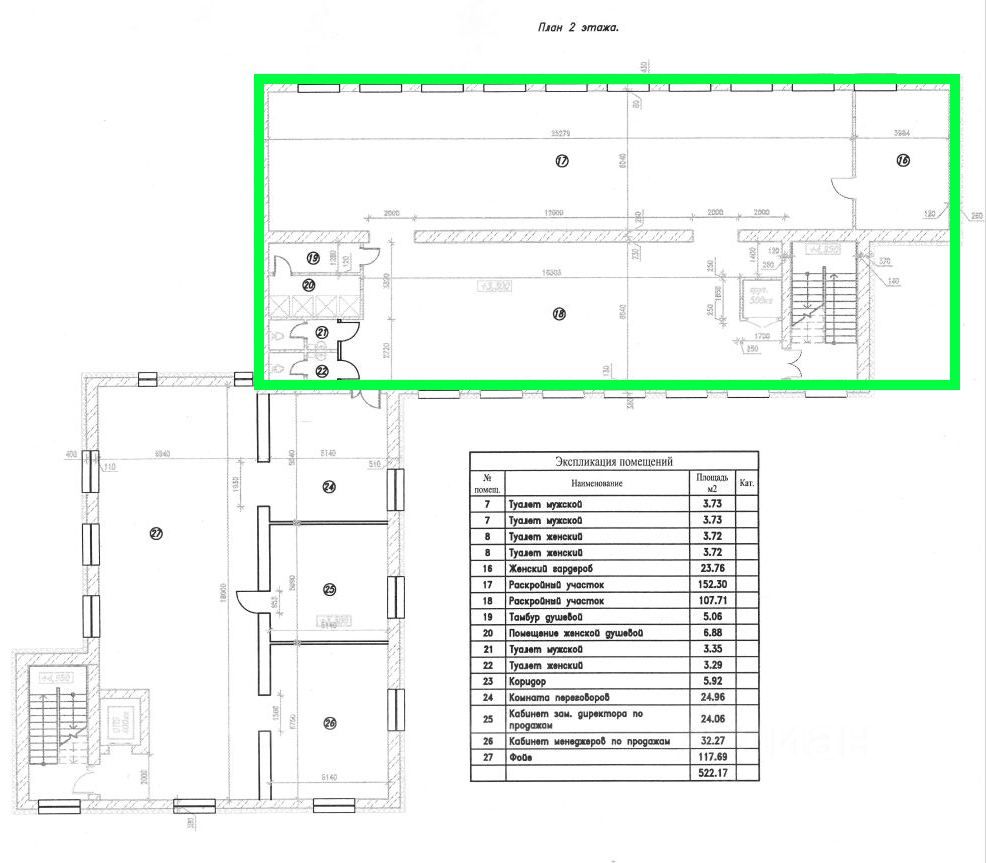
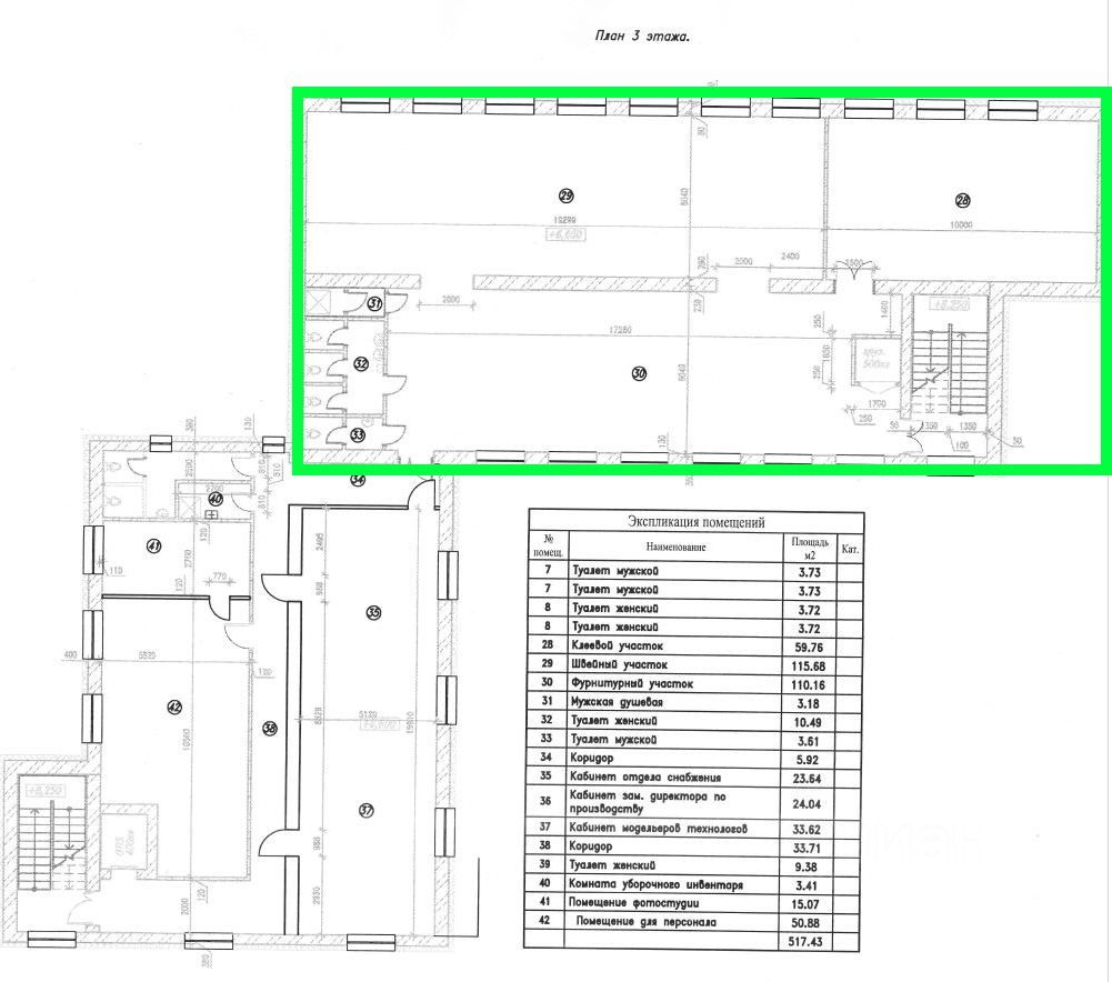
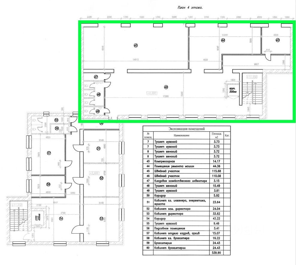
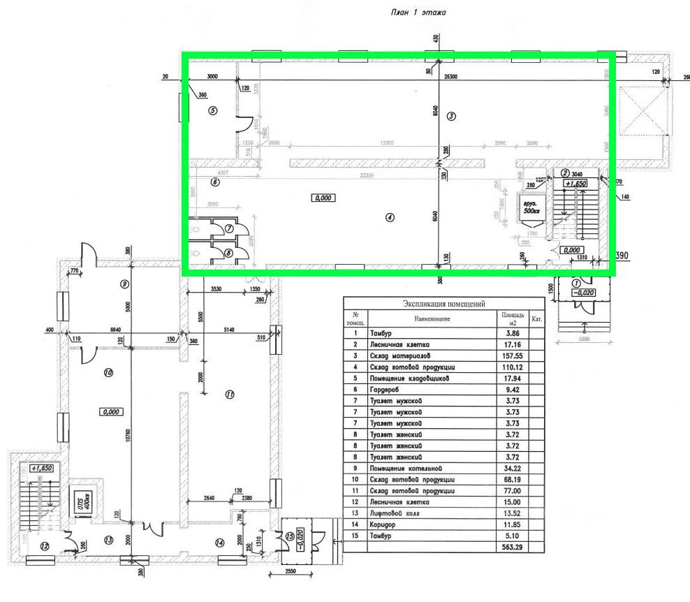
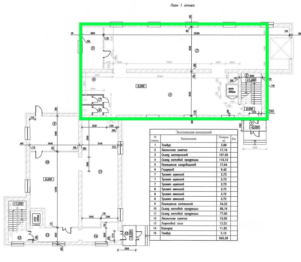
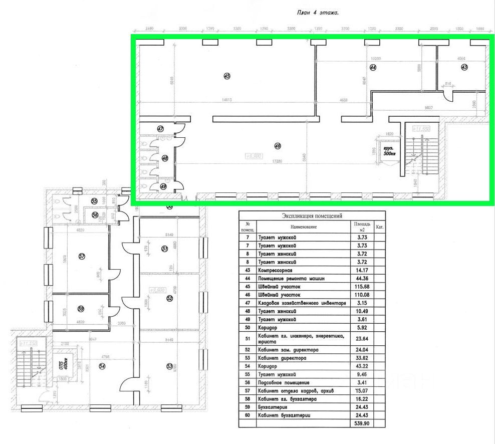
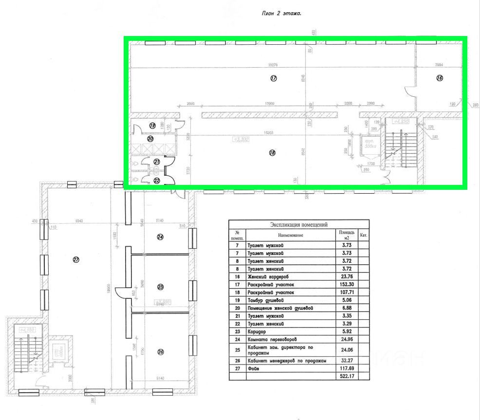
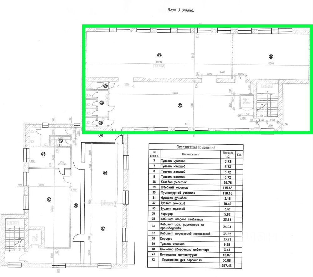
Административное здание, 4 этажа, 1200 кв.м. Свои земельный участок 0.3 Га.
Заезд возможен с 1 октября!!!, уже с учётом подготовки.
В отличном состоянии, все инженерные коммуникации работают бесперебойно, со стандартным качественным ремонтом.
Есть грузовой подъемник.
Возможен заезд для разгрузки на склад (с небольшой реконструкцией можно использовать как гараж)
Мощность 65 кВт (можно увеличить по запросу)
Собственная служба эксплуатации
Один собственник
Своя огороженная территория с парковкой.
Хорошая транспортная доступность - 10-15 минут до метро, 6 маршрутов по проспекту Дзержинского.
Возможные варианты использования:
Чистое производство с офисами и складом ( швейное, сборочное. НЕ пищевое)
Учебный центр
Шоу рум









