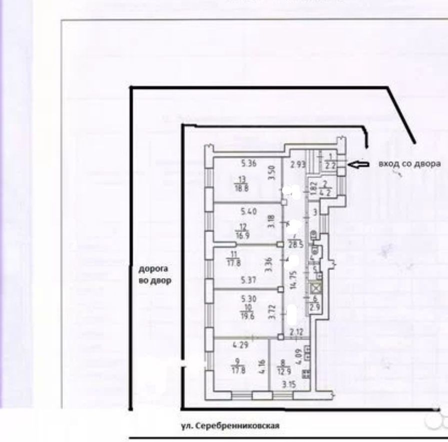
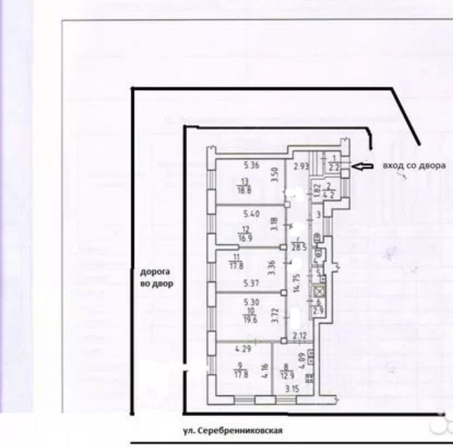
Огромное помещение с отдельным выходом во двор НЕ через подъезд!
Перекрытия именно в этом помещении ЖБ.
Полностью под ремонт!
Можно использовать под разные виды бизнеса!
Высота потолка 3.7 метра. Несущих стен нет только колонны.
Обмен на авто, недвижимость с вашей доплатой.


