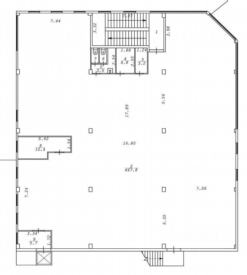
Сдается в аренду торговое помещение 500 кв.м. Здание находится на входе в городской парк им. Коротеева. С отдельным входом. Высота потолков 4м. Для подъема грузов в помещение предусмотрен подъемник 500кг. Выделенная электрическая мощность 40 кВт. Есть санузел. Коммунальные и эксплуатационные услуги оплачиваются отдельно. Обеспечительный платеж 1 месяц аренды.