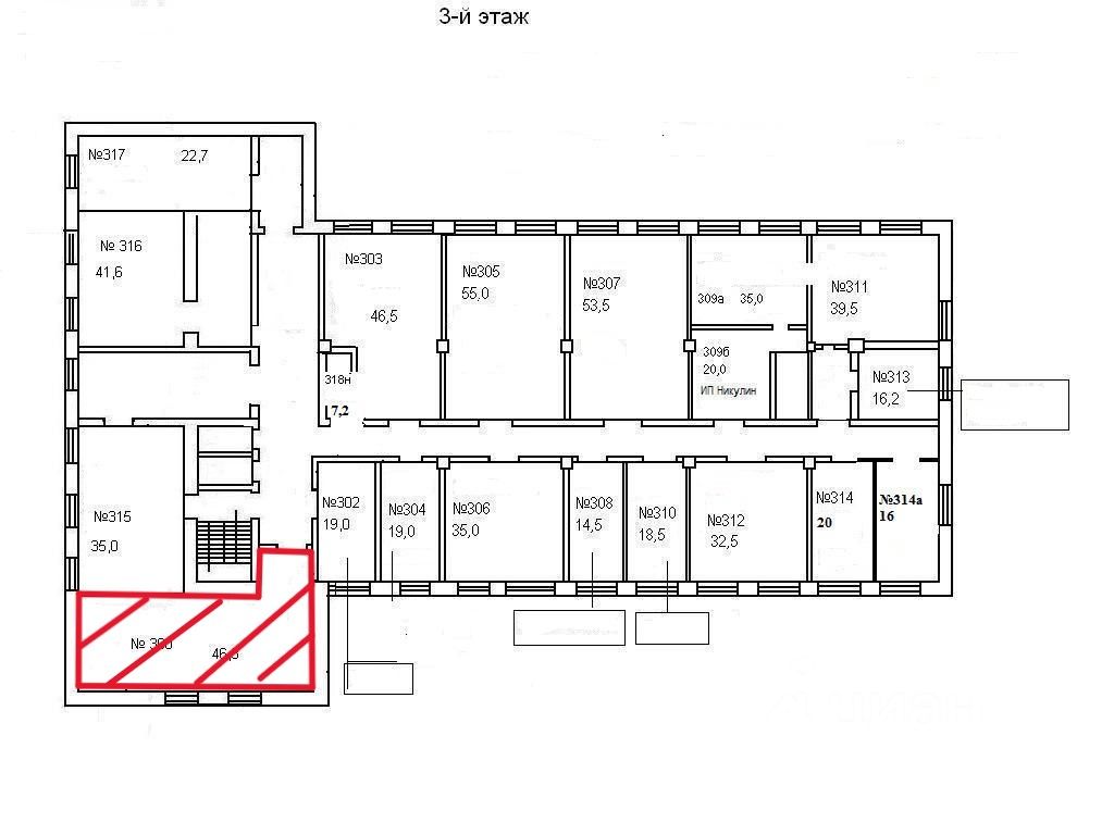
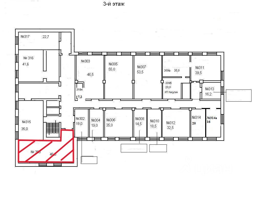
Светлое помещение на третьем этаже второго корпуса Делового Центра ''Кинокопировальная фабрика''.
Хороший ремонт - армстронг, линолеум, обои под покраску.
Достаточно мест на парковке Делового Центра.
Коммунальные услуги оплачиваются дополнительно.
Развитая инфраструктура: в шаговой доступности различные сетевые магазины, столовая, салон красоты.
Удачное местоположение:
- 7 минут пешком до остановки Октябрьский универмаг,
- 10 минут пешком до метро Речной вокзал и Михайловской набережной Новосибирска, МФЦ Зыряновский,
- 12 минут пешком до ГПНТБ.





