Если цена в объявлении изменится, мы сразу сообщим вам об этом на электронную почту.
Нажимая «Подписаться», вы соглашаетесь с правилами.
продам дом, Пляжная8 000 000 ₽
16 янв 2025
Дата публикации объявления
Обн. 15 июля 2025
Дата обновления объявления
17
Количество просмотров (+ просмотры за сегодня)
92 807 ₽/м²
Чистая продажа
Термин "Чистая продажа" означает, что в квартире никто не прописан или
есть куда выписаться и вывезти вещи. Это лучший вариант для покупателя.
Вероятность срыва сделки минимальна.
Этажей2
Площадь участка7,18 соток
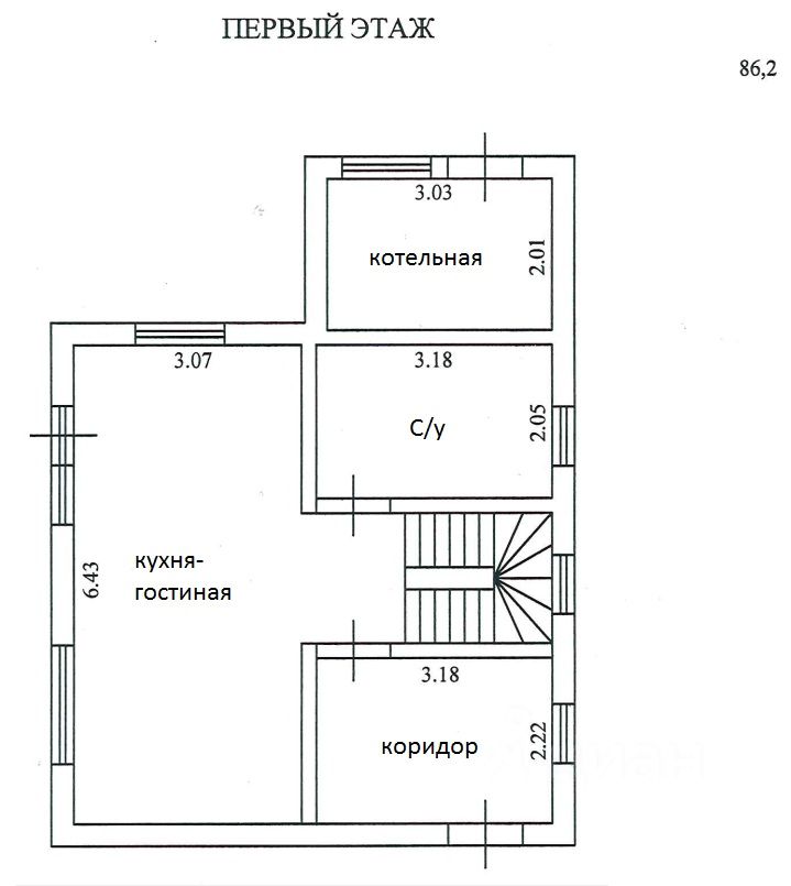
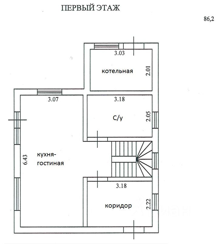
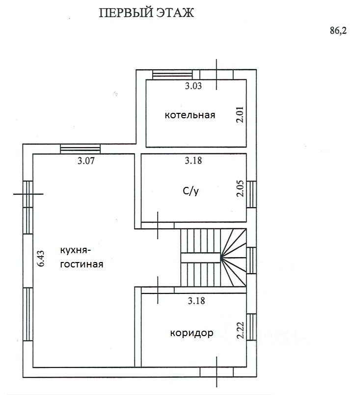
Общая площадь86,2 м2
ЭлектричествоЕсть
Газоснабжениецентральное
Продам дом из теплоблоков с видом из окон на Обское море в коттеджном поселке ''Пичугово море''. !!! ТОЛЬКО в апреле - натяжной потолок во всем доме в подарок !!! 40 минут на машине от города. До пляжа 3 минуты пешком. Дом двухэтажный 86,2 м2. Очень теплый. На первом этаже: коридор, большая кухня-гостиная, большой санузел, лестница, на втором этаже холл, две спальни, большой санузел (при желании его можно переделать в детскую). Подходит для круглогодичного проживания. Участок 7,18 соток ровный прямоугольный без уклона. Забор с двух боковых сторон, с дальней стороны столбы для забора, с лицевой стороны можно сделать на свой вкус. Дом построен из теплоблоков.
Продам дом из теплоблоков с видом из окон на Обское море в коттеджном поселке ''Пичугово море''. !!! ТОЛЬКО в апреле - натяжной потолок во всем доме в подарок !!! 40 минут на машине от города. До пляжа 3 минуты пешком. Дом двухэтажный 86,2 м2. Очень теплый. На первом этаже: коридор, большая кухня-гостиная, большой санузел, лестница, на втором этаже холл, две спальни, большой санузел (при желании его можно переделать в детскую). Подходит для круглогодичного проживания. Участок 7,18 соток ровный прямоугольный без уклона. Забор с двух боковых сторон, с дальней стороны столбы для забора, с лицевой стороны можно сделать на свой вкус. Дом построен из теплоблоков. Большие теплые пятикамерные пластиковые окна Veka с двойным стеклопакетом, мультифункциональными стеклами (с защитой от солнца) и немецкой фурнитурой. Два входа - на дорогу и на участок. Можно пристроить террасу. Вход в котельную отдельный - со двора. Отопление - электрокотел, теплый пол на первом этаже, на втором этаже радиаторы под окнами. По границе участка проходит газ. Подведение газа к участку оплачено, можно подключать. Вода - центральная. В поселке три скважины, вода круглосуточно в любое время года без счетчиков. Слив - септик с переливом, два колодца по два кольца - 3 м3 и 2 м3. Электричество заведено в дом, сделана разводка по дому, установлены выключатели и розетки во всех помещениях. Сделана чистовая отделка White box: оштукатурены и зашпаклеваны стены, сделана разводка воды, вентиляция в санузлах и кухонной зоне. Пол на первом этаже - полусухая стяжка, на втором - черновой деревянный. И дом, и участок оформлены в собственность, можно купить в ипотеку. Поселок ''Пичугово Море'' - один из лучших поселков в Новосибирской области. Управляющая компания следит за чистотой. Дороги чистятся регулярно. Поселок закрыт от посторонних, въезд через шлагбаум по пропускам. Охрана на въезде, на пирсе, перед входом на пляж. Во время купального сезона на пляже работает спасатель. Проводятся развлекательные мероприятия для детей и взрослых на праздники, открытие/закрытие сезона. На территории дачного курорта ''Пичугово море'' есть: Магазин с продуктами и товарами первой необходимости. Большая детская площадка. Футбольное поле. Шахматный клуб. Детский клуб, куда можно привести детей и оставить их под присмотром опытного педагога на время, пока взрослые заняты своими делами. Оборудованный пляж с шезлонгами и кинотеатром. В летнее время на пляже работает бар, где можно вкусно покушать и попробовать разнообразные напитки. Еженедельные кинопоказы под открытым небом. Набережная для прогулок. Пирс для катеров и лодок. Веревочный парк с тренажерами и качелями для детей и взрослых. Искусственное озеро в 2 минутах ходьбы. В зимнее время года горки для катания на плюшках. Каток. Магазины, аптеки, почта, банк, пункты выдачи заказов, школа и детский сад в деревне Новопичугово (1 км от поселка). Если вы любите пляжный отдых, рыбалку, охоту, собирать грибы и ягоды, то это место для Вас!