В избранном
В избранное
Пожаловаться
Напечатать
Следить за ценой

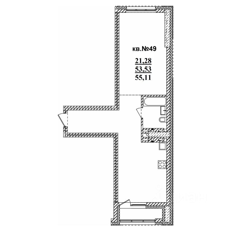
продам 2-к, Садовая, 17 стр.11 016 070 ₽

11 дек 2024
Обн. вчера
199 386 ₽/м²
  • Чистая продажа

Жилой комплекс «Римский квартал»

  • Строится1 дом
  • Построено1 дом
  • Классбизнес, комфорт
Все квартиры в этом ЖК