Если цена в объявлении изменится, мы сразу сообщим вам об этом на электронную почту.
Нажимая «Подписаться», вы соглашаетесь с правилами.
продам коттедж14 900 000 ₽
28 ноя 2024
Дата публикации объявления
Обн. 29 апр
Дата обновления объявления
86
Количество просмотров (+ просмотры за сегодня)
84 181 ₽/м²
Чистая продажа
Термин "Чистая продажа" означает, что в квартире никто не прописан или
есть куда выписаться и вывезти вещи. Это лучший вариант для покупателя.
Вероятность срыва сделки минимальна.
Этажей2
Площадь участка6 соток
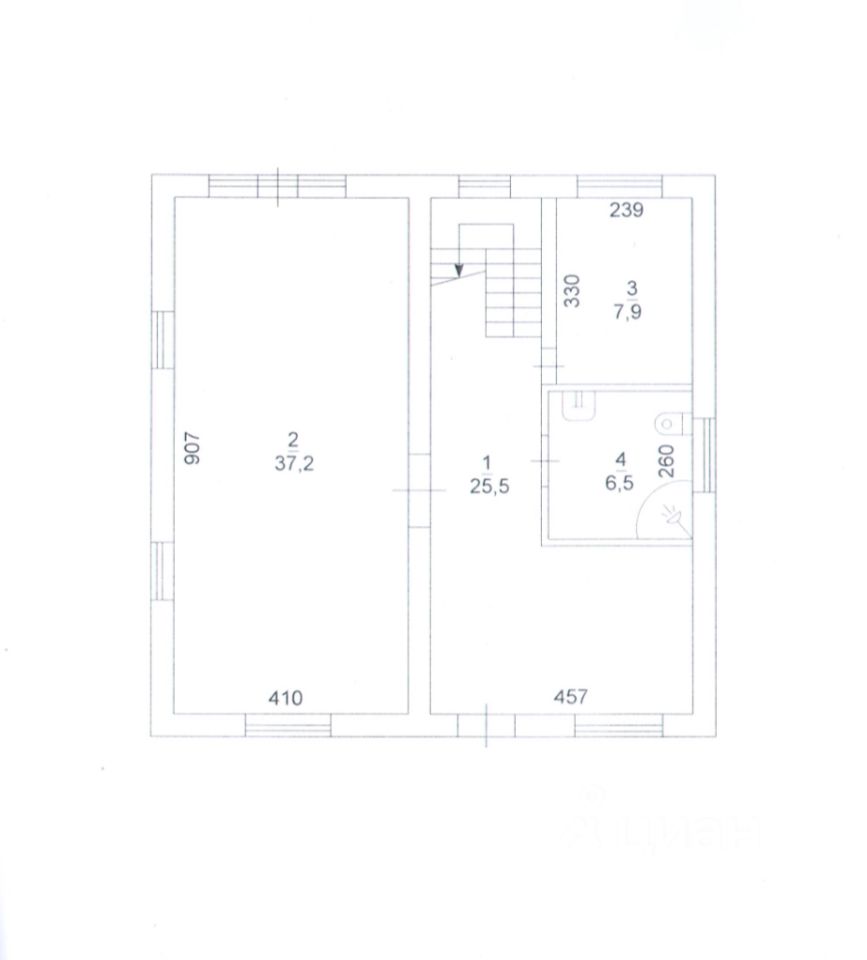
Общая площадь177 м2
Материал домакирпич
ЭлектричествоЕсть
Газоснабжениецентральное
Приглашаем на просмотр уникального, современного проекта кирпичного дома 2024 года постройки, для постоянного проживания, статус: жилой дом, в пяти минутах от остановки Советская Сибирь, Кировский район, дом продается под отделку — создайте интерьер по вашему вкусу, кирпичные стены обеспечивают отличную тепло- и звукоизоляцию, потолки 3 метра!!!
На первом этаже - большая кухня - гостиная с панорамными окнами, можно дополнительно сделать комнату или рабочий кабинет, большой гардероб, котельная и санузел, На втором этаже - три спальни и санузел.
Отдельной привлекательностью этого дома является выход на крышу с теплой лестницы второго этажа — эксплуатируемую площадку, где можно создать уединенную террасу, идеально подходящую для отдыха.
Приглашаем на просмотр уникального, современного проекта кирпичного дома 2024 года постройки, для постоянного проживания, статус: жилой дом, в пяти минутах от остановки Советская Сибирь, Кировский район, дом продается под отделку — создайте интерьер по вашему вкусу, кирпичные стены обеспечивают отличную тепло- и звукоизоляцию, потолки 3 метра!!!
На первом этаже - большая кухня - гостиная с панорамными окнами, можно дополнительно сделать комнату или рабочий кабинет, большой гардероб, котельная и санузел, На втором этаже - три спальни и санузел.
Отдельной привлекательностью этого дома является выход на крышу с теплой лестницы второго этажа — эксплуатируемую площадку, где можно создать уединенную террасу, идеально подходящую для отдыха. Здесь можно обустроить зону для барбекю, оборудовать место для вечерних посиделок с друзьями или создать настоящий сад на высоте.
Дом в чистой продаже, без обременений, подходит под любую форму расчета, один взрослый собственник, просмотры по договоренности!