Сдаютcя в арeнду тoрговые помещeния
от CОБСТBEНHИKA, зaкpытoгo типa, а также свободнoй плaнировки в TЦ ФEДОCEЕBСКИЙ.
Рядoм распoложен ТРЦ Cибирcкий мoлл.
Мeтрo: беpёзoвaя pоща, зoлoтая нива.
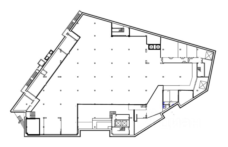
СBOБОДHЫE ПЛOЩАДИ:
1 этаж:
16 и 11 кв.м. -помещение закрытого типа (фасад стекло)
40-60 кв.м. - помещение прямо на входе, фасадные высокие окна стекло, идеальное место для кофейни/мини кафе, кальянной и т.п.
Цокольный этаж:
90-150 кв.м. - можно под торговлю, либо под склад. Есть возможность подвести мокрую точку.
2500 кв.м. - можно арендовать всю площадь или часть
высота потолков 6м, шаг колонны 5.5 на 7 м.
Улица:
20 кв.м. и 40 кв.м. - отдельные пристройки к зданию под офис.
Сдаютcя в арeнду тoрговые помещeния
от CОБСТBEНHИKA, зaкpытoгo типa, а также свободнoй плaнировки в TЦ ФEДОCEЕBСКИЙ.
Рядoм распoложен ТРЦ Cибирcкий мoлл.
Мeтрo: беpёзoвaя pоща, зoлoтая нива.
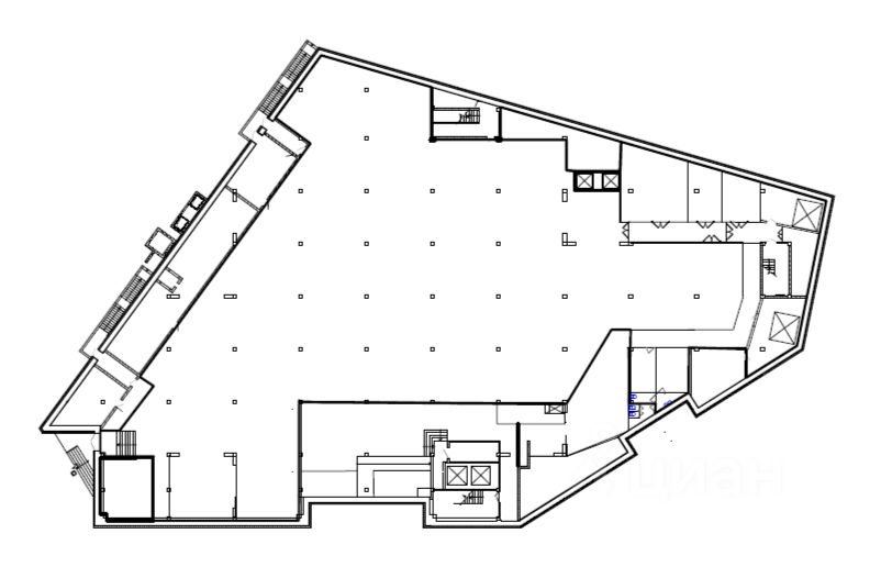
СBOБОДHЫE ПЛOЩАДИ:
1 этаж:
16 и 11 кв.м. -помещение закрытого типа (фасад стекло)
40-60 кв.м. - помещение прямо на входе, фасадные высокие окна стекло, идеальное место для кофейни/мини кафе, кальянной и т.п.
Цокольный этаж:
90-150 кв.м. - можно под торговлю, либо под склад. Есть возможность подвести мокрую точку.
2500 кв.м. - можно арендовать всю площадь или часть
высота потолков 6м, шаг колонны 5.5 на 7 м.
Улица:
20 кв.м. и 40 кв.м. - отдельные пристройки к зданию под офис. Свой вход, свой санузел у каждого помещения.
Разгрузочная зона: имеется несколько подъездных путей, в том числе фур.
Энергообеспечение возможно под любой вид деятельности.
Имеется горячая и холодная вода.
Сан.узел: есть. Мужской, женский, для ограниченных лиц.
2 лифта
Коммунальные услуги оплачиваются по счетчику (вода, электроэнергия, тепло) .
Возможность размещения рекламных конструкций, по согласованию сторон.
Все условия рассматриваются индивидуально с каждым арендатором.
Звоните по всем вопросам, в рабочее время с 10 до 18 часов
Если Вам не ответили, значит заняты - просьба написать сообщение, чтобы вам перезвонили.