Если цена в объявлении изменится, мы сразу сообщим вам об этом на электронную почту.
Нажимая «Подписаться», вы соглашаетесь с правилами.
продам коттедж, Боровая35 000 000 ₽
18 апр 2024
Дата публикации объявления
Обн. 17 апр
Дата обновления объявления
639
Количество просмотров (+ просмотры за сегодня)
119 454 ₽/м²
Чистая продажа
Термин "Чистая продажа" означает, что в квартире никто не прописан или
есть куда выписаться и вывезти вещи. Это лучший вариант для покупателя.
Вероятность срыва сделки минимальна.
Этажей2
Площадь участка9,82 соток
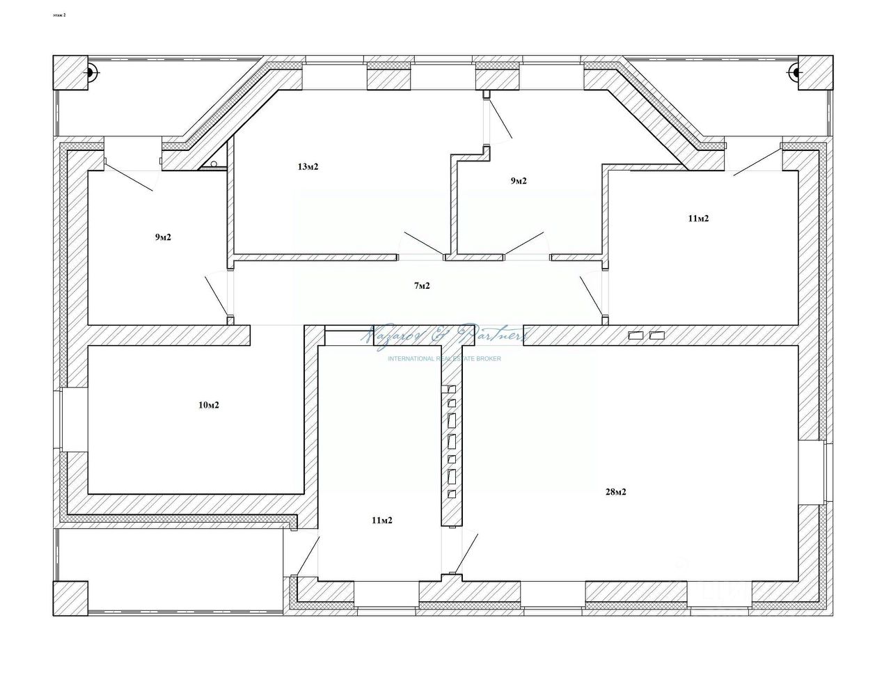
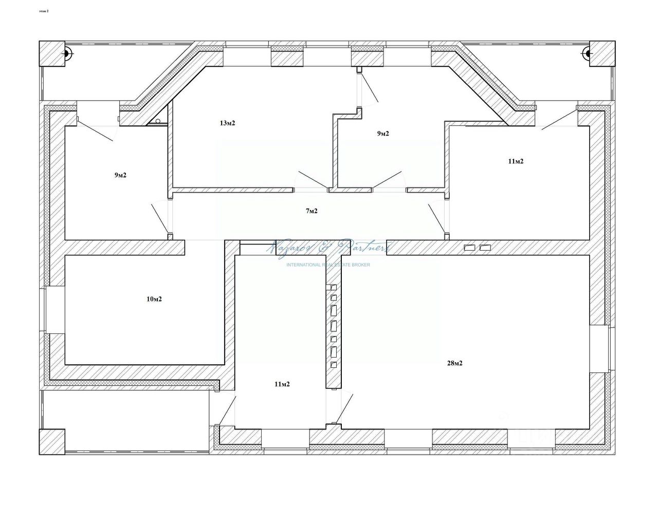
Общая площадь293 м2
Материал домакирпич
Предлагается к продаже стильный загородный дом, построенный на живописном лесном участке и предназначенный для постоянного проживания или отдыха на выходных.Дом расположен так, что большие панорамные окна гостиной выходят на поросший многолетними деревьями лес. Из-за этого создаётся ощущение полного единения с природой. Архитектура дома органично вписывается в окружающий ландшафт. Дом находится в закрытом охраняемом поселке, в 25 минутах от центра города. В доме два этажа и подвал, простая форма и компактный план. Основные материалы — дерево и камень — делают дом тёплым и уютным. Роскошная изюминка дома - арочные окна в спальных комнатах, они максимально наполняют помещение естественной освещенностью и визуально увеличивают пространство.
Предлагается к продаже стильный загородный дом, построенный на живописном лесном участке и предназначенный для постоянного проживания или отдыха на выходных.Дом расположен так, что большие панорамные окна гостиной выходят на поросший многолетними деревьями лес. Из-за этого создаётся ощущение полного единения с природой. Архитектура дома органично вписывается в окружающий ландшафт. Дом находится в закрытом охраняемом поселке, в 25 минутах от центра города. В доме два этажа и подвал, простая форма и компактный план. Основные материалы — дерево и камень — делают дом тёплым и уютным. Роскошная изюминка дома - арочные окна в спальных комнатах, они максимально наполняют помещение естественной освещенностью и визуально увеличивают пространство. Первый этаж - общая зона открытой планировки - кухня, гостиная, столовая, холл,гостевой санузел.На втором этаже - три спальни, кабинет, гардеробная, санузел с ванной. Из двух спален и ванной комнаты предусмотрены выходы на террасы. В подвальной части расположены хозяйственные помещения и зона отдыха, включающая в себя - домашний кинотеатр, винный погреб, сауну. Предметы мебели и домашнего интерьера представлены коллекциями известных итальянских производителей Alf dafre, Caligaris, Former, Bonaldo. Изысканный дизайн в санузлах, подчёркнут современным стилем немецкой сантехники Kaldewei. Безупречная износостойкость смесителей Kludi (Германия) и Hansgrohe в сочетании с высоким дизайном создают совершенную обстановку в зоне кухни и санузлах. Светильники Artemide, Elchholtz и SLV выгодно подчеркивают стиль и индивидуальность интерьера дома. Все коммуникации - центральные, отопление - газ. По периметру установлено видеонаблюдение.