Если цена в объявлении изменится, мы сразу сообщим вам об этом на электронную почту.
Нажимая «Подписаться», вы соглашаетесь с правилами.
продам дом, Верх-Ирмень2 300 000 ₽
6 апр 2024
Дата публикации объявления
Обн. 12 мар
Дата обновления объявления
152
Количество просмотров (+ просмотры за сегодня)
45 098 ₽/м²
Чистая продажа
Термин "Чистая продажа" означает, что в квартире никто не прописан или
есть куда выписаться и вывезти вещи. Это лучший вариант для покупателя.
Вероятность срыва сделки минимальна.
Этажей2
Площадь участка13 соток
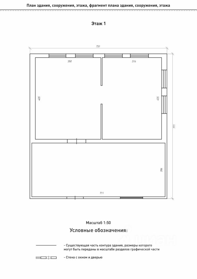
Общая площадь51 м2
Материал домадерево
ЭлектричествоЕсть
Газоснабжениецентральное
Продаю двухэтажный дом, каждый этаж площадью по 51 кв. м., на втором легко встать в полный рост у любой стены. Можно использовать как летний вариант, либо как чердак, либо полноценно утеплить для круглогодичного использования - свободная планировка без перегородок. Кровельный пирог выполнен по технологии мягкой кровли Технониколь с применением пароизоляции и возможностью утепления изнутри.
Ровный участок правильной формы, ухожен, весной не топит. Площадь 13 соток, есть вариант добавить при необходимости. Перед усадьбой много места, выезд на асфальтированную дорогу. Газ по границе участка, в дом заведён центральный водопровод. Дом готов для летнего проживания, для зимы не хватает отопления. Есть возможность подключить 380 В.
Продаю двухэтажный дом, каждый этаж площадью по 51 кв. м., на втором легко встать в полный рост у любой стены. Можно использовать как летний вариант, либо как чердак, либо полноценно утеплить для круглогодичного использования - свободная планировка без перегородок. Кровельный пирог выполнен по технологии мягкой кровли Технониколь с применением пароизоляции и возможностью утепления изнутри.
Ровный участок правильной формы, ухожен, весной не топит. Площадь 13 соток, есть вариант добавить при необходимости. Перед усадьбой много места, выезд на асфальтированную дорогу. Газ по границе участка, в дом заведён центральный водопровод. Дом готов для летнего проживания, для зимы не хватает отопления. Есть возможность подключить 380 В.
В селе более 10 магазинов, пункты OZON и WB, аптеки, больница, современная школа, музыкальная школа, детский сад с бассейном, Дом культуры, столовая, спорткомплекс, конная секция, футбольное поле, крытый каток, большая детская площадка с игровым городком, ветеринарный участок, почтовое отделение, храм и церковь. Остановки общественного транспорта, бесплатный автобус курсирует в среднем каждые 2 часа. Есть пруд для рыбалки, лес, охотхозяйство. Перспективное, активно развивающееся село с рабочими местами.
Подходит под ипотеку и маткапитал. Документы в порядке (на кадастре, проведено межевание). Один взрослый собственник (владение 20 лет), без каких-то обременений. Продажа oт собственника, полная стоимость в договоре.