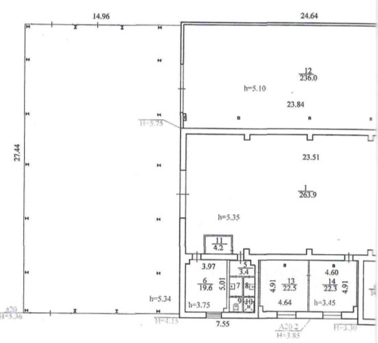
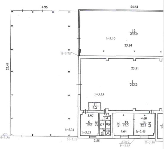
Предлагается тёплое помещение универсального назначения подходящее для решения множества задач с мощность 400кВт (склад, производство). Помещение 2291 м2 Аренда от собственника, без посредников и комиссий Внутри имеются: офисные помещения, раздевалка, туалет, душевая, столовая. Энерго-эффективное освещение. Четверо ворот. Беспылевой бетонный пол. Холодное/горячее водоснабжение. Охраняемая территория, пропускной контроль, видеонаблюдение. На соседней территории имеется ЖД тупик (по прямой 400м) Удобное транспортное расположение. (остановка ''Бетонный Завод'') Перед объектом большая площадка для парковки и разворота транспорта (в том числе и грузового).
Предлагается тёплое помещение универсального назначения подходящее для решения множества задач с мощность 400кВт (склад, производство). Помещение 2291 м2 Аренда от собственника, без посредников и комиссий Внутри имеются: офисные помещения, раздевалка, туалет, душевая, столовая. Энерго-эффективное освещение. Четверо ворот. Беспылевой бетонный пол. Холодное/горячее водоснабжение. Охраняемая территория, пропускной контроль, видеонаблюдение. На соседней территории имеется ЖД тупик (по прямой 400м) Удобное транспортное расположение. (остановка ''Бетонный Завод'') Перед объектом большая площадка для парковки и разворота транспорта (в том числе и грузового). Мощность 150кВт. возможно увеличить до 400 кВт Коммунальные услуги оплачиваются отдельно ( вода, электричество, пропускная система) Полная арендная стоимость за месяц: Отопление включено в стоимость. Электроэнергия, водоснабжение, водоотведение (септик), оплачиваются по счётчику. Без НДС
Подробнее